HP Netserver LXr Pro8 30/FC Config Guide for Windows NT4.0 Clusters
Manuals
Brands
HP Manuals
Server
HP NetServer LH II
60
61
62
63
64
65
66
67
68
69
17
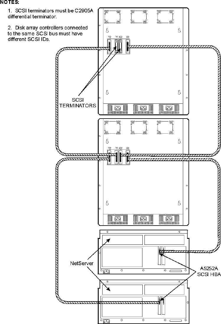
Figure 10. SCSI Bus Cabling for Connecting Multiple Disk Arrays
1
...
...
64
65
66
67
68
...
69