HP Netserver LPr Quick Service Guide

6
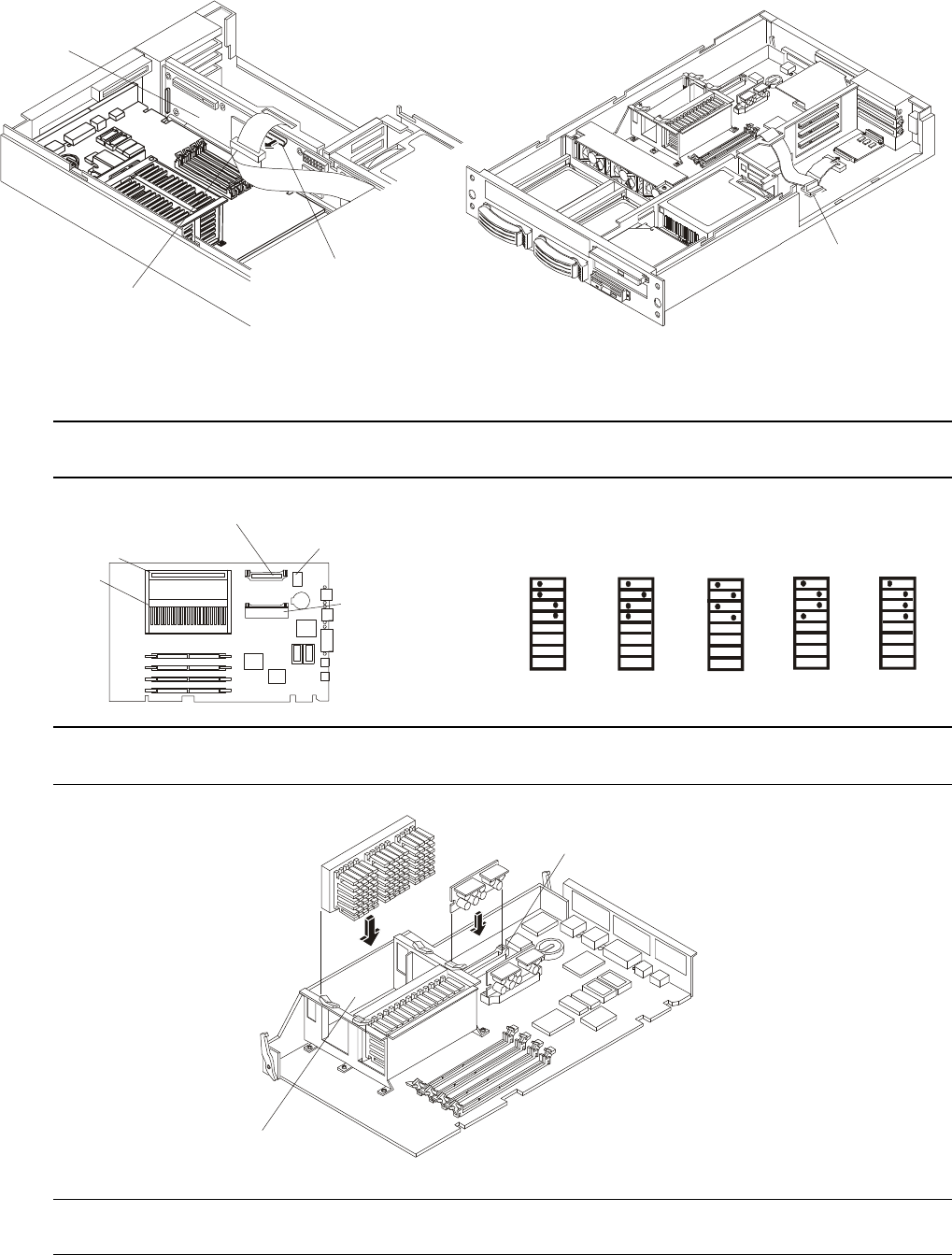
Embedded SCSI
Connector
SCSI Cable
Connector
I/O Board
Terminator
Block
Processor Module
NOTE Be sure that the VRM and the processor module associated with it are both in primary or
secondary slots.
Secondary Processor
Module Slot
Primary Processor
Module
Secondary Processor
VRM Slot
Primary Processor
VRM
CPU Processor
Switch
NOTE: Only the first 4 switches set the processor clock.
1
2
3
4
1
2
3
4
350 MHz
400 MHz
ON
OFF
ON
OFF
1
2
3
4
450 MHz
ONOFF
1
2
3
4
ON
OFF
1
2
3
4
550 MHz
ON
OFF
500 MHz
NOTE If you have two modules in your system with different clock rates, the switch setting must be for
the lower of the two.
Do not touch VRM
components
Secondary
Processor Slot
Secondary VRM Slot
VRM
Processor
Module
NOTE Be sure that the VRM and the processor module associated with it are both in primary or
secondary slots.