ServerNet Cluster 6780 Planning and Installation Guide (G06.28+, H06.05+)

Table Of Contents
Preparing a System for Installation or Migration
ServerNet Cluster 6780 Planning and Installation Guide527301-005
4-7
Checking NonStop S-series Servers
4. To install MSEBs, refer to Installing the Required Hardware in NonStop S-Series
Servers on page 4-10.
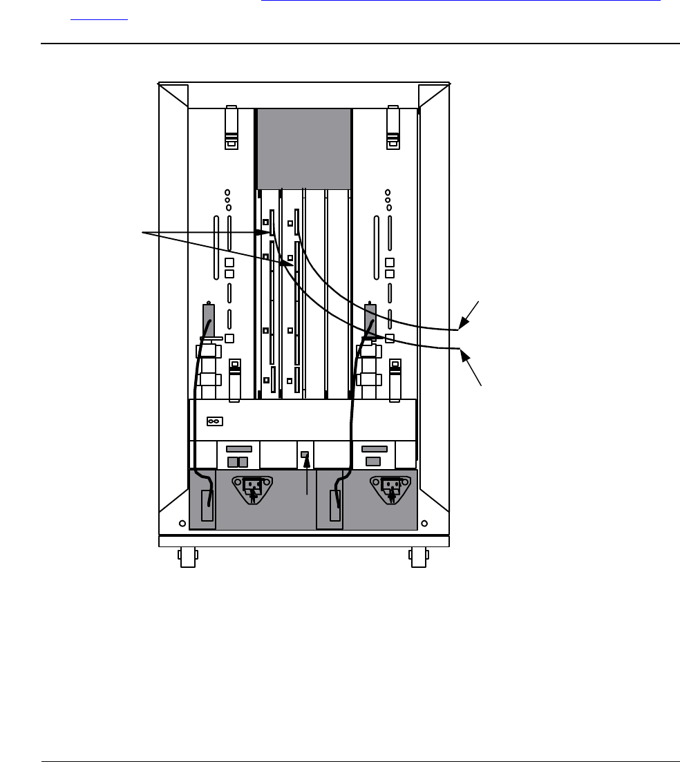
Figure 4-1. Slots 51 and 52 for NonStop S-Series Processor Enclosure
vst007.vsd
50 55
51 52 53 54
56
Slot Component
50, 55 Processor Multifunction (PMF) CRU
51, 52 ServerNet Expansion Board (SEB) or
Modular ServerNet Expansion Board
(MSEB)
53, 54 ServerNet Adapter
56 Emergency Power-Off (EPO) Connector
Slots 51 and 52
Fiber-Optic
cables to
6780 Switch
Y Fabric
X Fabric