User's Manual
Manuals
Brands
HM Electronics Manuals
Electronics
Wireless belt pack transceiver
53
54
55
56
57
58
59
60
61
62
49
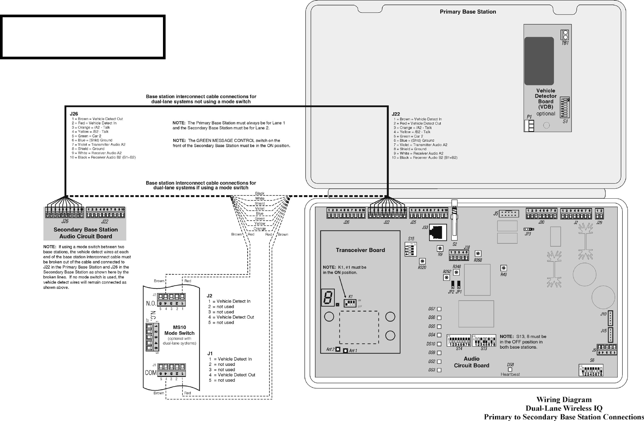
Figure 35
.
This diagram only shows how to interconnec
t t
he
primary and secondary base stations in dual-lane
configurations. For all other equipment connec
tions,
refer to Figures 30
–
34.
1
...
...
59
60
61
62