User's Manual
Manuals
Brands
HM Electronics Manuals
Electronics
Wireless belt pack transceiver
51
52
53
54
55
56
57
58
59
60
48
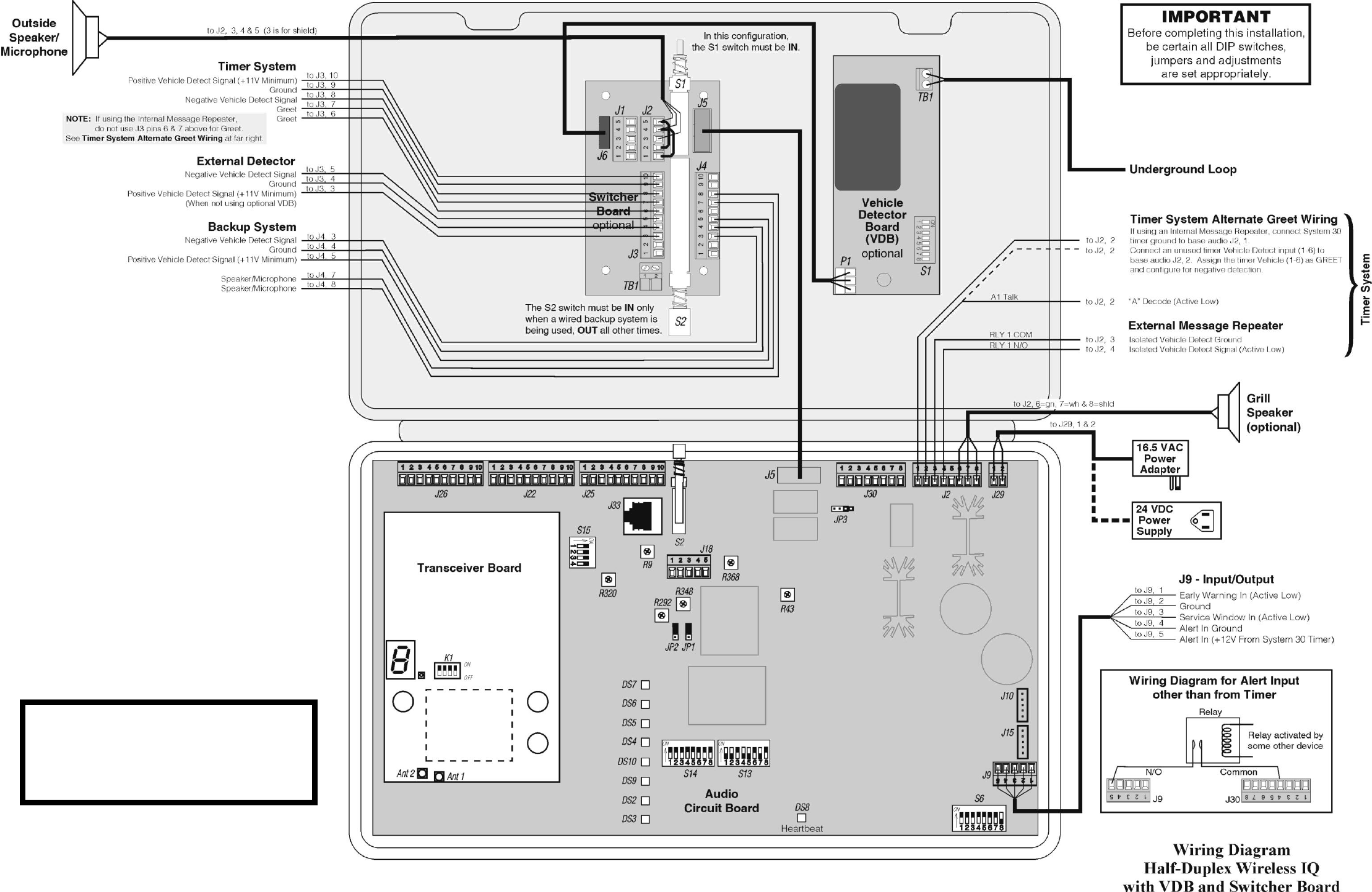
Figure 34
.
For
dual-lane
prim
ary to secondary
base station co
nnections, see Figur
e 35.
For
tandem
prima
ry to secondary
base station co
nnections, see Figur
e
36.
1
...
...
58
59
60
61
62