User's Manual

13
3. EQUIPMENT INSTALLATION
These instructions are for installation of standard Wireless IQ equipment and most
commonly used optional equipment. Specific instructions may also be enclosed
with optional equipment.
IMPORTANT! If you haven’t already done so, before proceeding with the installation,
plug the battery charger into an AC electrical outlet and place all COMMUNICATOR
®
batteries into it for charging while the other equipment is being installed.
3.1 Base Station Installation
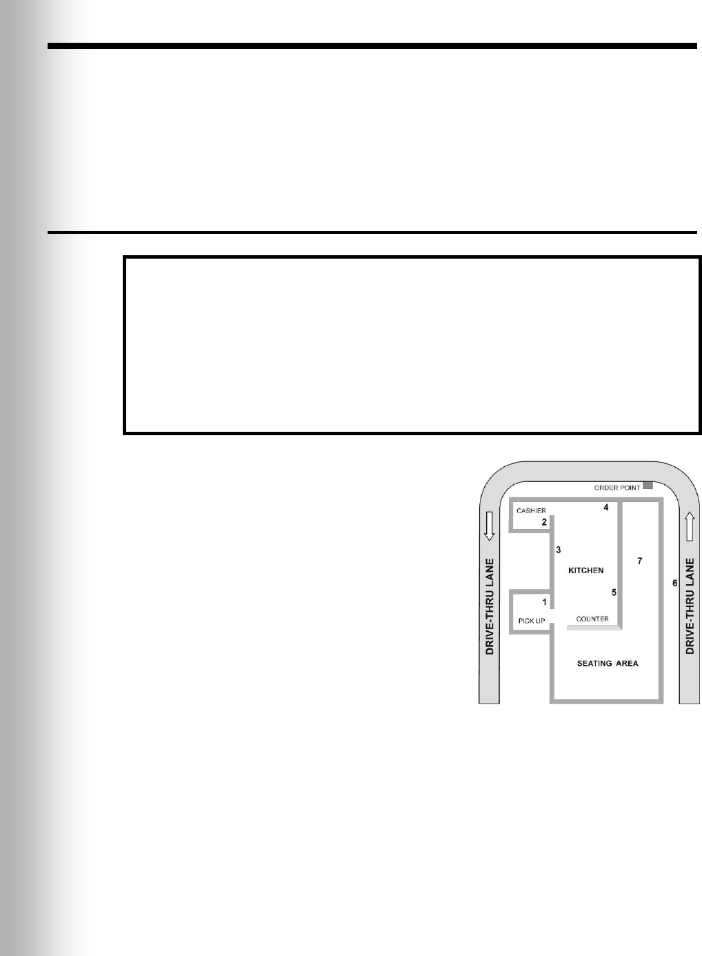
A typical drive thru QSR building is set up as
shown in Figure 11. The numbers in Figure 11
refer to the location numbers in the following
instructions. This drawing is similar to most store
layouts. The base station is typically mounted at
location #1. This is also where old equipment is
usually found. The order taker is usually at
location #2 in a high volume store. The order
taker Communicator signal from location #2 must
penetrate two walls to reach the base at location
#1. Communicator signals from the kitchen must
only penetrate one wall to reach the base at
location #1. If there are large pieces of equipment
in the kitchen or speed team operation is needed
outside at location #6, location #1 may be a poor
choice for mounting the base. For speed team
operations, the signal would have to penetrate
three walls and get by the kitchen equipment to
reach the base at location #1. Coverage in the store around location #7 and outside
at location #6 may be poor. Don’t forget to check for a basement. Communicator
signals from basements may not reach the base at location #1.
If outside coverage is not needed, mounting the base at locations #3, #4 or #5 is best.
Communicator signals from most work areas would thereby require no wall penetration.
Other work and seating areas may require signals to penetrate one wall. In this case,
the remote antenna kit can be used. The antenna may not need to be mounted very far
from the base station unless a large piece of equipment causes a dead spot.
The Wireless IQ base uses two antennas to avoid multi-path dropouts. Both
antennas transmit and receive signals. The antenna coverage area can be improved
by mounting one antenna away from the base. The base will select the antenna that
gives the best signal to a particular COMMUNICATOR
®
location.
Things to consider before and during base station installation
The base station should be located where, if you stand with your back to the wall, you
can see most of the work area where the Communicators will be used.
The number of walls between the base station and where the Communicators will be
used should be minimized.
Sheets of stainless steel on the walls may shield or reflect radio signals.
Outside coverage may be needed for Speed Team operation.
Large windows will allow the signal to pass through and can improve outside coverage.
The antenna coverage area can be extended with the Remote Antenna Kit.
If a system is being replaced, it may not be desirable to use the same mounting location
for the base station as used before, but it may be required it in some cases.
Figure 11. Typical drive-thru
store layout