Installation Guide

English
8
SPECIFICATIONS
Operating pressure 70 – 120 psi (4.9 – 8.3 bar 5 – 8.5 kgf/cm
2
)
Dimensions 10-11/32” × 9-1/4” × 2-3/8”
Length × Height × Width (263 mm × 235 mm × 60 mm)
Weight 2.3 lbs. (1.0 kg)
Magazine capacity 100 Staples
.025 ft
3
/cycle at 100 psi
Air consumption (.73 ltr/cycle at 6.9 bar)
(.73 ltr/cycle at 7 kgf/cm
2
)
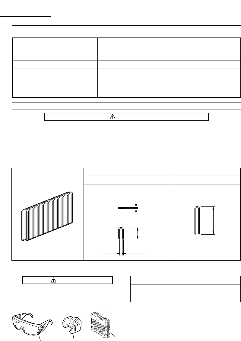
STAPLE SELECTION
WARNING
●
Be sure to use only the genuine HITACHI staples for the N3804AB3. The use of
any other staples can result in tool malfunction and/or staple breakdown,
leading to serious injuries.
Only staples shown in the Table below can be driven with this Stapler.
Dimensions of staples
1
1
Safety glasses 1
2
Nose cap (mounted on tool) 2
3
Case 1
F
inish staples 18 gauge
18 Gauge 1/4” Crown
Min. Max.
1-1/2” (38mm)
.043”
(1.08mm)
.049”
(1.25mm)
.138”
(3.5mm)
1/2”
(13mm)
ACCESSORIES
WARNING
䢇
Accessories other than those shown
below can lead to malfunction and
resulting injuries.
STANDARD ACCESSORIES
3
2










