Operation Manual

41
Svenska
○ Förvara redskapet oåtkomligt för barn.
○ Rengör och underhåll apparaten noggrant och förvara den på
en torr plats.
○ Se till att stoppknappen är avslagen vid transport eller
förvaring.
○ Täck över klingan med ett transportskydd vid transport i ett
fordon eller vid förvaring.
Om en situation som inte behandlas i denna bruksanvisning
uppstår, var försiktigt och använd sunt förnuft. Kontakta Hitachi:s
återförsäljare om du behöver hjälp. Var särskilt uppmärksam på
avsnitt som föregås av följande ord:
TEKNISKA DATA
VARNING
Information som är av största betydelse för att undvika allvarlig
personskada eller dödsfall.
VIKTIGT
Information av stor betydelse för att undvika personskada eller
skada på maskin och utrustning.
OBSERVERA
Information som är viktig för att klargöra en åtgärd och därmed
undvika misstag.
VIKTIGT
Ta inte isär rekylstartaren, eftersom det är lätt att skada sig på
rekylfjädern.
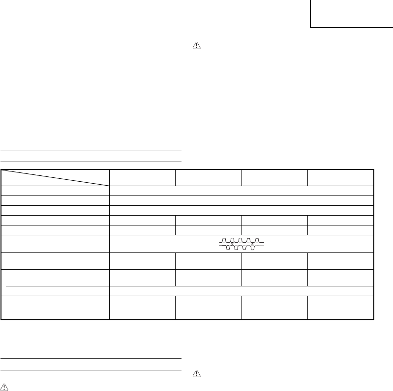
MODELL
CH22EAP (50ST)
CH22EA (50ST)
CH22EBP (62ST)
CH22EB (62ST)
CH22ECP (62ST)
CH22EC (62ST)
CH22ECP (78ST)
CH22EC (78ST)
Motorstorlek (ml) 21,1
Tändstift NGK BMR 7A (Europa och Australien) eller Champion CJ 6 (andra regioner)
Bränsletankens rymd (l) 0,30
Torr vikt (kg) 4,5 4,8 5,3 5,5
Total klipplängd (mm) 500 620 620 780
Typ av knivblad
Ljudtrycksnivå
LpA (dB (A))(ISO 10517) 89 89 89 89
Ljudeff ektnivå
Lw misurata (dB (A)) (2000/14/EC) 108 108 108 108
LwA (dB (A)) 112
Vibrationsnivå (m/s
2
) (ISO 10517)
Främre handtag
Bakre handtag
7,3
5,9
14,8
7,4
2,6
2,8
2,6
2,8
OBSERVERA
Överensstämmande buller- och vibrationsnivåer har beräknats som den tidsvägda totalenergin för buller- och vibrationsnivåer under
olika arbetsförhållanden med följande tidsfördelning: ISO 10517.....1/5 tomgång, 4/5 körning. 2000/14/EC.....endast körning.
* Rätt till ändringar förbehålls.
ANVÄNDNING
Bränsle (Bild 1)
VARNING
Saxen är utrustad med en tvåtaktsmotor. Kör alltid motorn med
oljeblandad bensin.
Se till att ventilationen är tillfredställande vid tankning eller
hantering av bränslet.
Bränsle
○ Använd alltid 89-oktanig blyfri bensin.
○ Använd tvåtaktsolja eller en blandning mellan 25:1 och 50:1,
angående mängd se uppgift på oljefl askan eller fråga en
Hitachi- återförsäljare.
○ Om originalolja inte fi nns använd en olja av hög kvalitet med
tillsats av ett antioxidationsmedel och uttrycklig märkning för
användning i tvåtaktsmotorer (JASO FC GRADE OIL eller ISO
EGC GRADE). Använd inte olja av typ BIA eller TCW (avsedd
för vattenkylda tvåtaktsmotorer).
○ Använd aldrig motorolja (10 W/30) eller spillolja.
○ Blanda alltid bensin och olja i en separat ren behållare.
Börja alltid med att fylla i halva bensinmängden. Häll därefter
i hela mängden olja. Blanda (skaka) blandningen. Häll sedan i
återstående mängd bensin.
Blanda (skaka) blandningen ordentligt innan blandningen hälls i
bränsletanken.
Bränslepåfyllning
VARNING (Bild 2)
○ Stanna alltid motorn vid bränslepåfyllning.
○ Öppna bränsletankens lock (1) långsamt vid påfyllning av
bränsle så att eventuellt övertryck försvinner.
○ Dra åt tanklocket ordentligt efter tankning.
○ Flytta alltid apparaten minst 3 m från tankningsplatsen före
start av motorn.
Rengör runt tanklocket innan bränslepåfyllning för att förhindra att
smuts hamnar i tanken. Se till att bränslet är ordentligt blandat före
tankning genom att skaka behållaren.
Start
VIKTIGT
Kontrollera före start att skärbladen inte kan hugga tag i något
föremål.
1. Sätt strömbrytaren (2) till läge ON (A). (Bild 3)
* Pumpa på handpumpens blåsa (4) tills bränslet strömmar in i
blåsan eller returledningen (om sådana fi nns). (Bild 4)
2. Tryck ner gasreglagespärren (3), dra in gasreglaget, släpp
sedan gasreglaget först och sedan gasreglagespärren. Nu är
gasreglaget spärrat i startläge. (Bild 3)
3. Skjut chokespaken (5) till läge CLOSED (stängd) (B). (Bild 5)
4. Dra kraftigt i startsnörets handtag. Håll stadigt i handtaget!
(Bild 6)
5. Flytta tillbaka chokespaken till läge RUN (öppen) (C), när du
hör, att motorn försöker starta. Dra sedan kraftigt i startsnörets
handtag igen.
000Book_CH22EAP(50ST)_WE_NE.indb 41000Book_CH22EAP(50ST)_WE_NE.indb 41 2012/01/16 10:11:452012/01/16 10:11:45