Operation Manual

46
Dansk
○ Rengør og vedligehold enheden omhyggeligt og opbevar den et
tørt sted.
○ Kontroller, at motorkontakten er afbrudt under transport og
opbevaring.
○ Under transport i et køretøj eller ved opbevaring dækkes
knivene med knivdækslet.
Hvis der forekommer situationer, som ikke er dækket af denne
manual, så vær omhyggelig og brug din sunde fornuft. Kontakt
din Hitachi-forhandler, hvis du behøver assistance. Vær særlig
opmærksom på udsagn, hvor følgende ord står foran:
ADVARSEL
Hvis instruktionerne ikke følges, kan der være fare for alvorlige
personskader eller død.
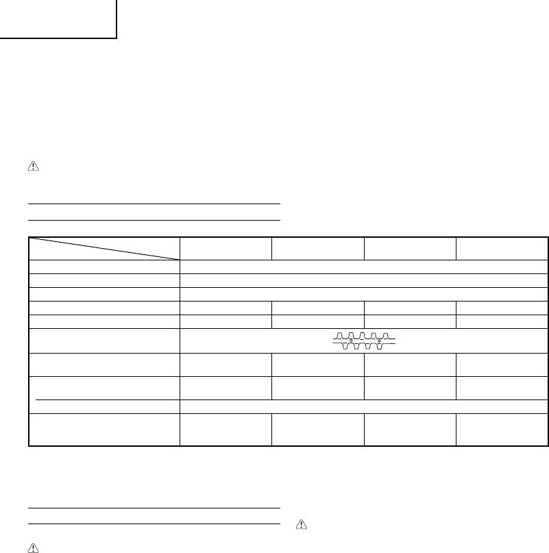
SPECIFIKATIONER
FORSIGTIG
Hvis instruktionerne ikke følges, kan der være fare for
personskader eller skader på udstyret.
BEMÆRK
Nyttig information for korrekt funktion og brug.
FORSIGTIG
Du må ikke skille rekylstarteren ad, da rekylfjederen kan
springe ud og forårsage personskade.
MODEL
CH22EAP (50ST)
CH22EA (50ST)
CH22EBP (62ST)
CH22EB (62ST)
CH22ECP (62ST)
CH22EC (62ST)
CH22ECP (78ST)
CH22EC (78ST)
Motorstørrelse (ml) 21,1
Tændrør NGK BMR 7A (Europa og Australien), eller Champion CJ 6 (andre regioner)
Brændstoftankkapacitet (l) 0,30
Tørvægt (kg) 4,5 4,8 5,3 5,5
Skærelængde i alt (mm) 500 620 620 780
Klingetype
Lydtryksniveau
LpA (dB(A)) (ISO 10517) 89 89 89 89
Lydeff ektniveau
Lw målt (dB (A)) (2000/14/EC) 108 108 108 108
LwA (dB (A)) 112
Vibrationsniveau (m/s
2
) (ISO 10517)
Forreste håndtag
Bagerste håndtag
7,3
5,9
14,8
7,4
2,6
2,8
2,6
2,8
BEMÆRK
Tilsvarende støjniveau/vibrationsniveau er beregnet som tidsvægtet energi i alt for støj/vibrationsniveauer under forskellige
driftsbetingelser med følgende tidsfordeling: ISO 10517.....1/5 tomgang, 4/5 fuld fart. 2000/14/EC.....kun fuld fart.
* Alle data kan muligvis blive uden varsel.
BETJENING
Brændstof (Fig. 1)
ADVARSEL
Hækkeklipperen er udstyret med en totaktsmotor. Motoren skal
altid køre med brændstof, som er blandet med olie.
Sørg for god ventilation, når der hældes brændstof på eller
brændstof håndteres.
Brændstof
○ Brug altid 89 oktan blyfri benzin.
○ Brug original totaktsolie eller brug en blanding mellem 25:1 til
50:1, se oliedunken vedrørende forholdet, eller kontakt din
Hitachi-forhandler.
○ Hvis original olie ikke er tilgængelig, skal du bruge en
kvalitetsolie, der er tilsat en antioxidant og udtrykkelig
anbefalet til brug i en luftkølet, totaktsmotor (JASO FC GRADE
OIL eller ISO EGC GRADE). Brug ikke BIA eller TCW (2-takts
vandafkølet type) blandet olie.
○ Brug aldrig multigradeolie (10W/30) eller spildolie.
○ Bland altid brændstof og olie i en separat ren beholder.
Begynd altid med at påfylde halvdelen af det brændstof, der
skal bruges. Tilsæt derefter hele oliemængden. Bland (ryst)
brændstofblandingen. Tilsæt den resterende mængde brændstof.
Bland (ryst) brændstofblandingen grundigt, inden den fyldes på
brændstoftanken.
Påfyldning af brændstof
ADVARSEL (Fig. 2)
○ Sluk altid for motoren, før du fylder brændstof på.
○ Åbn tankdækslet langsomt (1), når du fylder på, så eventuelt
overtryk forsvinder.
○ Sæt brændstofdækslet omhyggeligt på efter at have tanket.
○ Flyt altid enheden mindst 3 m væk fra brændstofområdet, før du
starter enheden.
Rens området omkring tankdækslet omhyggeligt inden du påfylder
brændstof for at sikre, der ikke falder urenheder i tanken. Kontroller,
at brændstoff et er godt blandet ved at ryste beholderen inden
påfyldning.
Start
FORSIGTIG
Inden du starter, skal du sikre dig, at skæreudstyret ikke rører
ved noget.
1. Sæt tændingsafbryder (2) på ON (A). (Fig. 3)
* Tryk snapsepumpen (4) adskillige gange, så brændstoff et
fl yder gennem pumpen eller returrøret. (hvis udstyret med det)
(Fig. 4)
2. Med gashåndtagsspærren (3) trykket ind, skal du trække
i gashåndtaget, og først langsomt slippe gashåndtaget og
derefter gashåndtagsspærren. Det låser gashåndtaget i
startpositionen. (Fig. 3)
3. Sæt chokerknappen (5) i LUKKET position (B). (Fig. 5)
4. Træk hurtigt i rekylstarteren, samt sørg for godt greb i
håndtaget, så det ikke smutter tilbage. (Fig. 6)
000Book_CH22EAP(50ST)_WE_NE.indb 46000Book_CH22EAP(50ST)_WE_NE.indb 46 2012/01/16 10:11:462012/01/16 10:11:46