Operation Manual
Table Of Contents
- 1 Overview
- 2 Appearance
- 3 Typical Application
- 4 Terminals and Interfaces
- 5 Installation and Wiring
- 6 Before You Start
- 7 Local Operation
- 8 Remote Operation via Batch Configuration Tool
- 9 Remote Operation via iVMS-4200
- 10 Accessing via Hik-Connect Mobile Client Software
- Appendix

Video Intercom Indoor Station·User Manual
10
5 Installation and Wiring
Before you start:
Make sure the device in the package is in good condition and all the assembly parts
are included.
The power supply the indoor station supports is 12 VDC. Please make sure your
power supply matches your indoor station.
Make sure all the related equipment is power-off during the installation.
Check the product specification for the installation environment.
5.1 Indoor Station Installation
The wall mounting plate and the junction box are required to install the indoor station
onto the wall. Junction boxes for 8-series and 6-series indoor stations are the same.
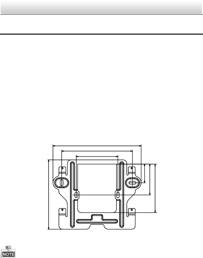
5.1.1 Wall Mounting Plate
60 mm
102 mm
127 mm
100 mm
27 mm
44.5 mm
70 mm
Figure 5-1 Wall Mounting Plate
The dimension of junction box should be 75 mm (width) × 75 mm (length) × 50 mm
(depth).
5.1.2 Wall Mounting with Junction Box
Wall mounting installations are the same for the 6-series indoor stations and the
8-series indoor stations. Here we take the wall mounting of DS-KH6310 model as an
example.










