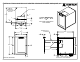
Dimensions
Table Of Contents
'5$:(5)8//<
(;7(1'('
5($56833257
6833/,('%<&86720(5
;
6$0(+2/(
3$77(5121
%27720
;5(&7
&87287',0(16,216
+
:'
,1&/8'('75$6+%,16
1276+2:1
$*75&75$6+$1'5(&<&/(&(17(56725$*('5$:(50$548,6(
5HYLVHG

