Installation Guide

©2016 Hestan Commercial Corporation
4
EN
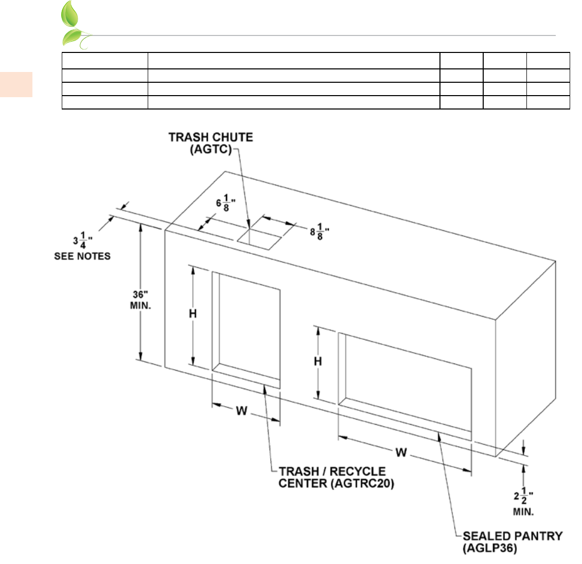
CUTOUT DIMENSIONS
Model Number Description W (in.) D (in.) H (in.)
AGLP36
Double Sealed Pantry Storage Doors, Marquise, 36"
33-7/8 23-3/8 19
AGTRC20
Trash and Recycle Center Storage Drawer, Marquise, 20"
17-1/4 24 26
Countertop Trash Chute with Cutting Board and Cover
6-1/8 8-1/8 n/a
NOTES:
3-1/4” DIMENSION FOR TRASH CHUTE IS MEASURED
FROM FACE OF ISLAND STRUCTURE AND DOES NOT
INCLUDE ANY OVERHANG FROM A COUNTERTOP.