Measurement Guide
Table Of Contents
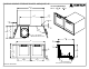
5($56833257
6833/,('%<&86720(5
0$;
;
)8//<(;7(1'('
3523$1(75$6+75$<
&87287',0(16,216
+
:
'
$*6''28%/(6725$*('22560$548,6(
5HYLVHG

