Measurement Guide



























$






 














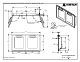
6$0(+2/(3$77(51
21%27720
)256&5(:
3/&6
'(7$,/$
6&$/(

&87287',0(16,216
+
:
$*$''28%/($&&(66'22560$548,6(
5HYLVHG

Summary of content (1 pages)