Installation Guide

©2017 Hestan Commercial Corporation
4
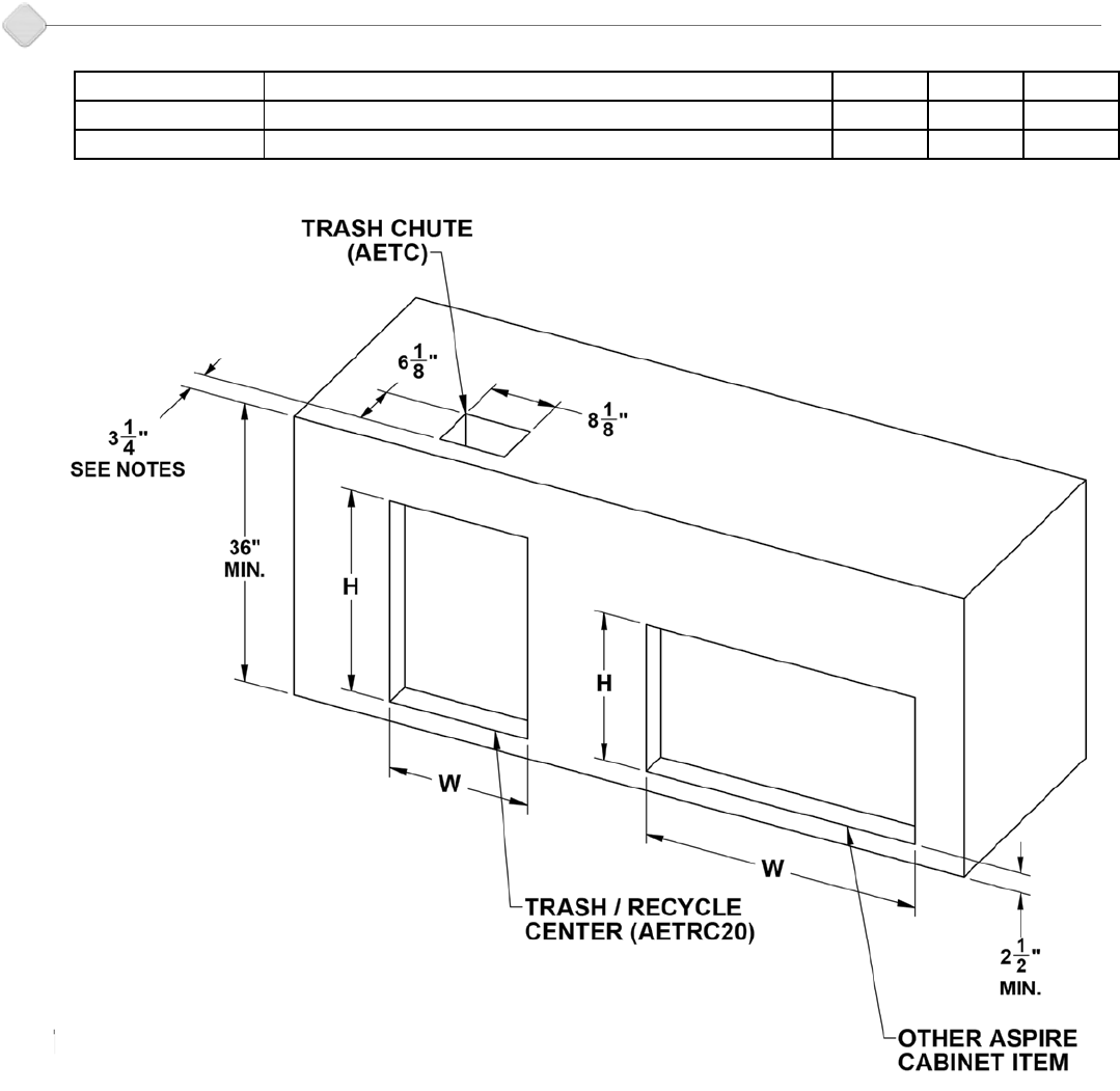
CUTOUT DIMENSIONS
Model Number
Description
W (in.)
D (in.)
H (in.)
AETRC20
Trash and Recycle Center Storage Drawer, 20"
17-1/4 18 26
AETC
Countertop Trash Chute with Cutting Board and Cover
6-1/8 8-1/8 n/a
NOTES:
3-1/4” DIMENSION FOR TRASH CHUTE IS MEASURED
FROM FACE OF ISLAND STRUCTURE AND DOES NOT
INCLUDE ANY OVERHANG FROM A COUNTERTOP.








