User Guide

15
Heat Controller, Inc. VMH SerieS Service Manual
14
A-VMH24SC-1
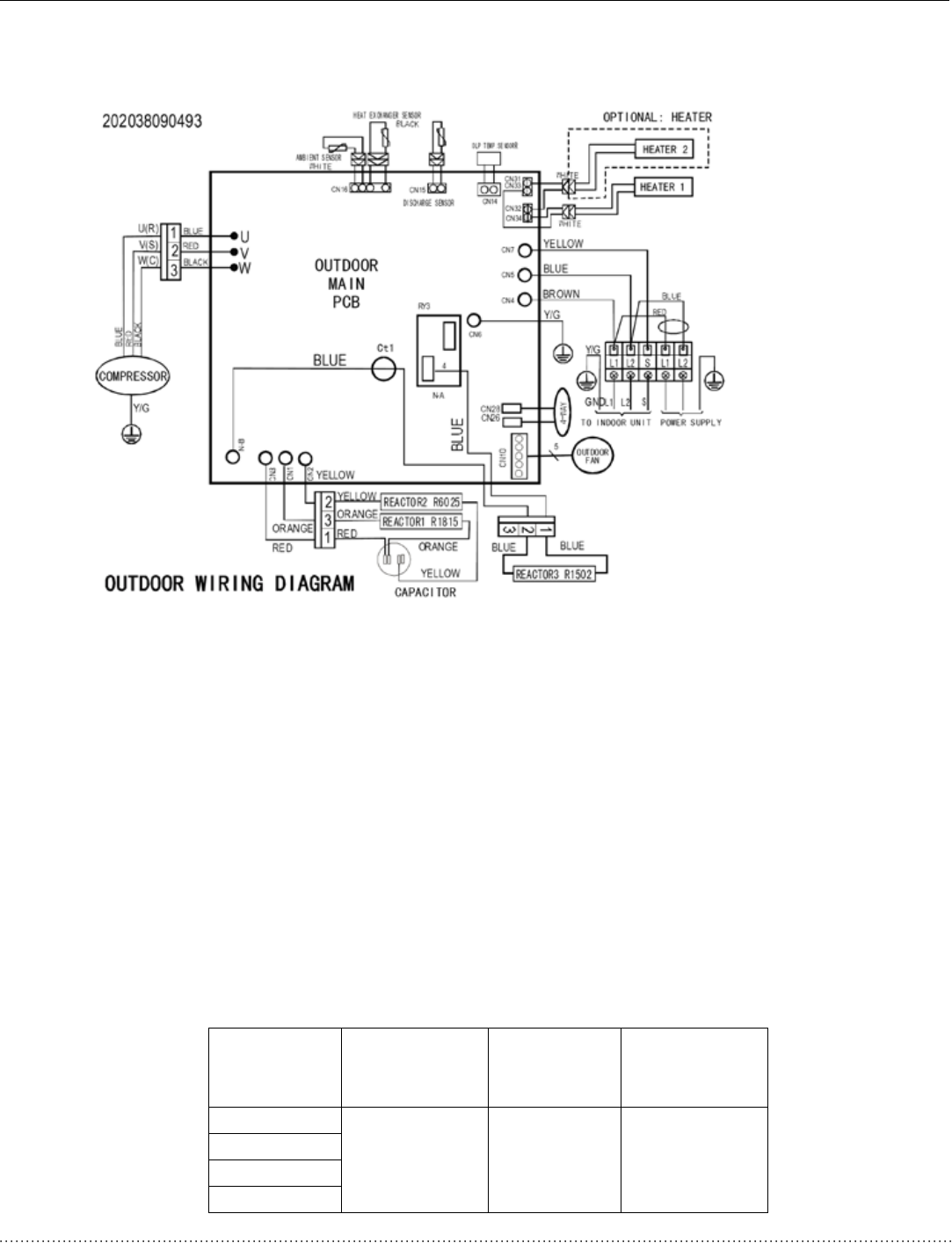
6. Installation details:
6.1 Power Wiring
• Consult local building codes, NEC (National Electrical Code) or CEC (Canadian Electrical
Code) for special requirements.
Connection Cable: Voltage drop on the connecting cable should be kept to a minimum.
The operating voltage will vary between – 24V to +24V DC.
Use cable size listed below:
MODEL
SIZE
POWER SOURCE
MIN CKT AMP
MAX FUSE/CB
AMP
AWG ( mi n)
Connecting Cable**
(outdoor to indoor)
9K
208/230-60-1
15/20
14/4
COPPER
STRANDED
12K
18K
24K










