User Guide
Manuals
Brands
Heat Controller Manuals
Other
VMH12SC-1
1
2
3
4
5
6
7
8
9
10
10
Service Manual
VMH SerieS
Heat Controller
, Inc.
9
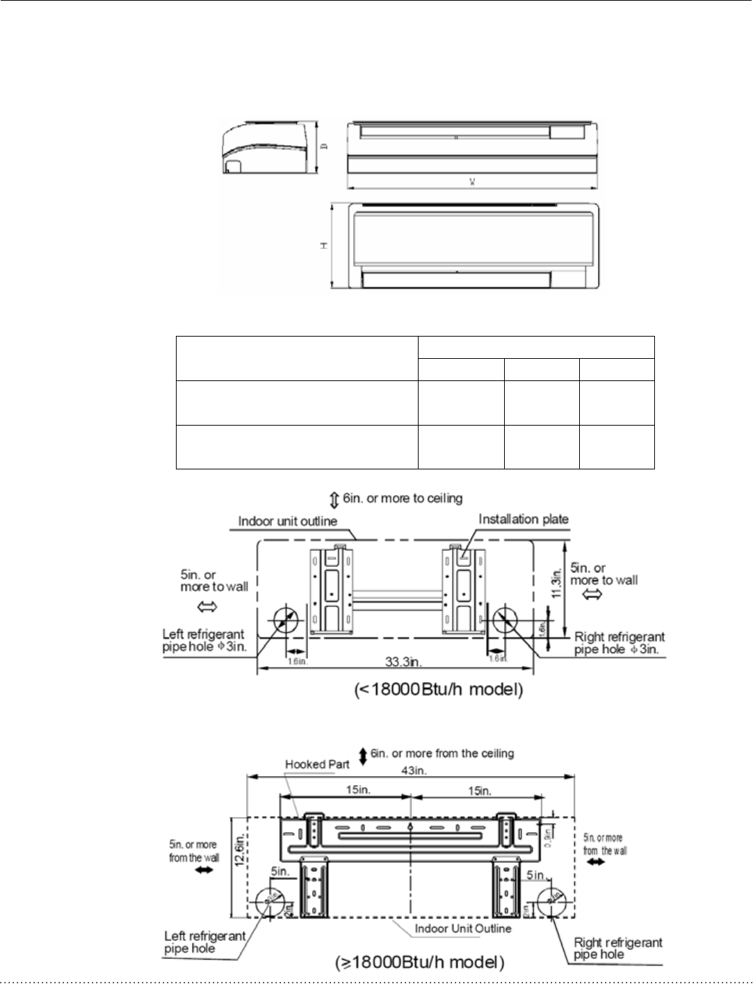
3. Dimension
3.1 Indoor Unit
Model
Dimens
ion (m
m)
W
H
D
B-
VMH09SC
B-
VMH12SC
845
(33.3in)
286
(11.3in)
165
(6.5in)
B-
VMH18SC
B-
VMH24SC
1080
(42.5in)
320
(12.6in)
200
(7.9in)
1
...
...
8
9
10
11
12
...
...
45