Wood Burning Fireplace Owner's Manual

18
6
6
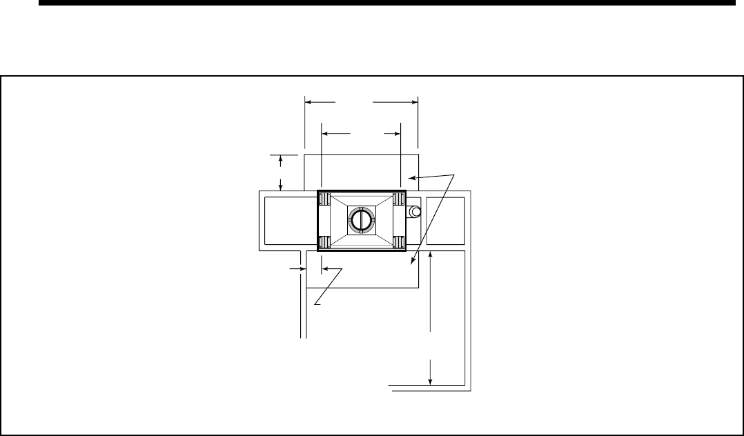
Framing & Clearances
52 in.
(1321 mm)
36 in.
(914 mm)
16 in. (406 mm)
(hearth
extension)
48 in.
(1219 mm)
12 in. (305 mm)
min. to
perpendicular
wall.
Figure 6.1 Fireplace Locations
A. Select Fireplace Location
Heat & Glo • HST-42D • 27177 • Rev AB • 11/08