User Guide

R
September 1, 2008
7019-205C
Page 15
Santa Fe Pellet Insert
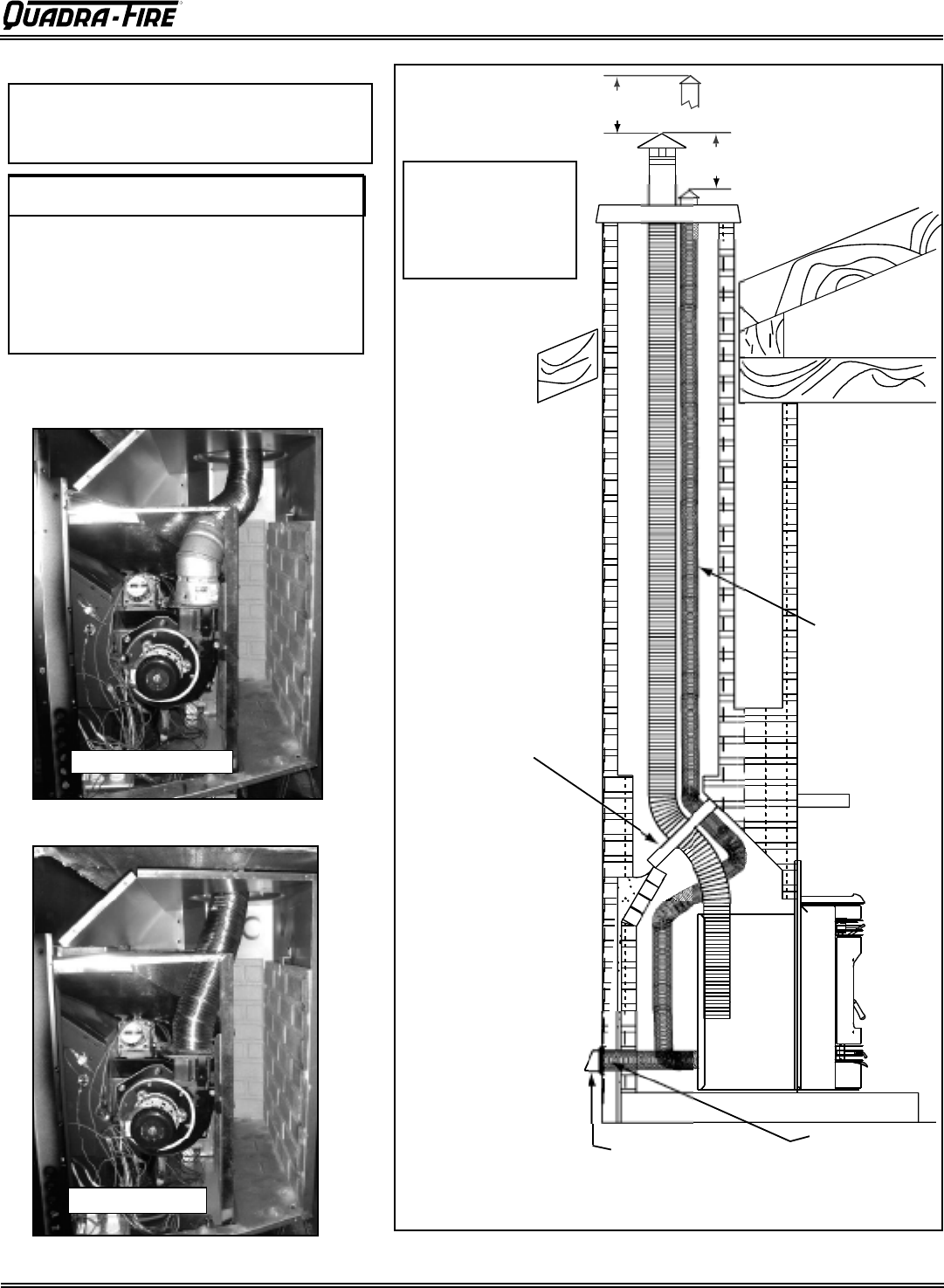
C. Full Reline With Outside Air
Figure 15.3
Outside Air
Termination
at
Chimney Top
Outside Air
through
Rear Wall
Exit through the
Ash Clean-Out of
Masonry Chimney
12” (305mm)
min. below
12” (305mm)
min. above
NOTE; Use metal
plate around
exhaust vent pipe
and seal all edges
with non-flammable
insulation such as
fiberglass, mineral
wool or ceramic.
Do not use high
temperature caulk-
ing materials to seal
any edge to prevent
future serviceability
NOTE: Check clearances carefully for this
type of installation to ensure adequate room
for outside air venting.
Check building codes prior to installation.
• Installation MUST comply with local, regional,
state and national codes and regulations.
• Consult local building, fire officials or authori-
ties having jurisdiction about restrictions,
installation inspection, and permits.
CAUTION
Direct Connect
45 degree elbow
Side view of Santa Fe Insert with
side panel removed.
Figure 15.1
Figure 15.2
NOTE: In Canada,
only a full reline is
allowed per ULC S-
628-93, ORD ULC
C1482-M1990.










