Santa Fe Pellet Insert Owner's Manual Installation and Operation

R
September 1, 2008
7019-205C
Page 9
Santa Fe Pellet Insert
Fire Risk.
Comply with all minimum clear-
ances to combustibles as speci-
fied.
WARNING
Failure to comply may cause
house fire.
NOTE:
• Illustrations reflect typical installations
and are FOR DESIGN PURPOSES
ONLY.
• I
llustrations/diagrams are not drawn to
scale.
• Actual installation may vary due to
individual design preference.
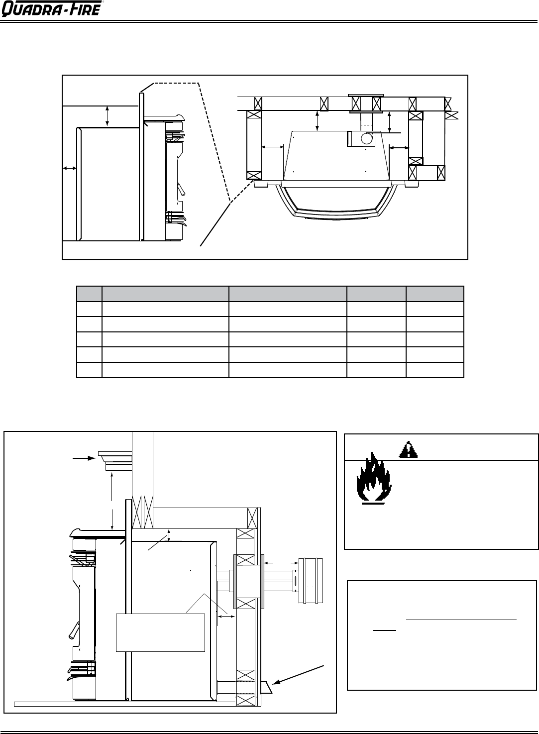
A
C
B
D
C
B
0 in. Clearance To Exposed Section And Face
B. Clearance To Combustibles, UL and ULC
Inches Millimeters
A Top of Hopper Top Vent 2.0 51
Rear Vent 2.5 64
B Side of Hopper Top or Rear Vent 2.0 51
C Back of Hopper Top or Rear Vent 2.5 64
D Vent Pipe to Combustible Top or Rear Vent 3.0 76
12 in
Top Vent = 2 in
Rear Vent = 2.5 in
Combustible
Mantel
Back of Hopper = 2.5 in
Vent Pipe
to Combustibles = 3 in
6 in
Outside Air
INSTALLED AS A BUILT-IN UNIT
Shown with Rear Vent and Optional Outside Air
Figure 9.1
Figure 9.2
AS A BUILT-IN










