User Guide

25
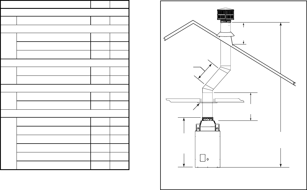
A. Chimney Requirements
Measure vertical distances from the base of the fi replace
as shown in Figure 8.2.
20 ft (6.10 m) max.
pipe between an
offset & return
Ceiling firestop
35 ft (10.67 m) max. straight
unsupported chimney height
16 ft (4.88 m) min. height (single offset-return)
20 ft. (6.10 m) min. height (double offset-return)
90 ft (27.4 m) max. height
6 ft (1.83 m) max.
unsupported chimney
above roof
47-1/4 in.
(1200 mm)
Effective
Height
Figure 8.2 Chimney Requirements
Table 8.1
ft meters
• Minimum overall straight height 14 4.27
• Minimum height with offst/return 16.5 5.03
• Maximum height 90 27.43
• Maximum chimney length bewtween an offset
and return
20 6.10
• Maximum distance between chimney stabilizers 35 10.67
• Double offset/return minimum height 20 6.10
• Maximum unsupported chimney length between
the offset and return
6 1.83
• Maximum unsupported chimney height above the
fi replace
35 10.67
• Maximum unsupported chimney above roof 6 1.83
WARNING! Risk of Fire! You must maintain 2 in. (51
mm) air space clearance to insulation and other combus-
tible materials around the chimney system. Failure to do
so may cause overheating and fi re.
Determine the chimney components needed to complete
your particular installation:
• Measure the total vertical height of the fireplace
installation from the base of the fi replace assembly to
the approximate location of the bottom of the termination
cap.
• Subtract the effective height of the fi replace assembly
(see Figure 8.2) from the total vertical height to determine
the overall height of the chimney installation.
• Create a schematic for your application similar to Figure
8.2 showing components required (referring to Table
8.1). Figure 8.1 identifi es those components and where
used.
• Install a ceiling fi restop whenever the chimney penetrates
a fl oor/ceiling.
NOTICE: A maximum of two pairs of offsets and returns
may be used.
CAUTION! Risk of Fire and/or Asphyxiation! DO
NOT connect this fi replace to a chimney fl ue servicing
another appliance. DO NOT connect to any air distribu-
tion duct or system. These actions could cause over-
heating/fi re in the chimney fl ue, or release of exhaust
fumes into the living areas.
Heat & Glo • HST-42D • 27177 • Rev AB • 11/08
HEIGHT OF CHIMNEY COMPONENTS in. mm
Chimney Stabilizer
SL3 4-3/4 121
Ceiling Firestops
FS338 0 0
FS339 0 0
FS340 0 0
Offsets/Returns
SL315 13-3/8 340
SL330 15-1/2 394
Roof Flashing
RF370 0 0
RF371 0 0
Chimney Sections*
SL306 4-3/4 121
SL312 10-3/4 273
SL318 16-3/4 425
SL324 22-3/4 578
SL336 34-3/4 883
SL348 46-3/4 1187
* Dimensions refl ect effective height.










