User Guide

Heatilator • Caliber Mesh CD Series-SIT Valve • 4040-849 Rev J • 06/0848
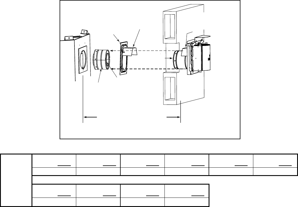
INTERIOR
Heat Shield or
Extended
Heat Shield
Wall Shield
Firestop
Heat Shield
1-1/2 in. (38 mm) min.
overlap
SHEATHING
Vent depth from back of appliance to
outside surface of exterior wall
(see chart below)
Slip Section
can be extended
Inner Vent
Outer Vent
EXTERIOR
Figure 10.25 Venting through the wall
Note: When using termination caps with factory-supplied
heat shield attached, no additional wall shield fi restop is
required on the exterior side of a combustible wall.
M. Install Horizontal Termination Cap
WARNING! Risk of Fire! The telescoping fl ue section
of the termination cap MUST be used when connecting
vent.
• 1-1/2 (38 mm) minimum overlap of fl ue telescoping
section is required.
Failure to maintain overlap may cause overheating and
fi re.
• Vent termination must not be recessed in the wall. Siding
may be brought to the edge of the cap base.
• Flash and seal as appropriate for siding material at
outside edges of cap.
• When installing a horizontal termination cap, follow
the cap location guidelines as prescribed by current
ANSI Z223.1 and CAN/CGA-B149 installation codes
and refer to Section 6 of this manual.
CAUTION! Risk of Burns! Local codes may require
installation of a cap shield to prevent anything or anyone
from touching the hot cap.
NOTICE: For certain exposures which require superior
resistance to wind-driven rain penetration, a fl ashing kit and
HRC caps are available. When penetrating a brick wall, a
brick extension kit is available for framing the brick.
Cap Specifi cation Chart (depth without using additional pipe sections)
CD-M Series
DVP-TRAPK1
Top Vent Depth
DVP-TRAP1
Rear Vent Depth
DVP-TRAPK2
Top Vent Depth
DVP-TRAP2
Rear Vent Depth
SLP-TRAP1
Top Vent Depth
SLP-TRAP2
Top Vent Depth
4-1/8 to 6 in. 3-5/8 to 5-1/2 in. 6-1/2 to 10-1/2 in. 7 to 11 in. 1 5/8 to 4 1/2 in. 4 to 8 in.
DVP-HPC1
Top Vent Depth
DVP-HPC1
Rear Vent Depth
DVP-HPC2
Top Vent Depth
DVP-HPC2
Rear Vent Depth
4-1/8 to 6-1/4 in. 3-5/8 to 5-3/4 in. 6-1/4 to 10-3/8 in. 5-3/4 to 9-7/8 in.
DVP-TRAP1 can adjust 1-7/8 in. (4-3/16 to 6-1/16)
DVP-TRAP2 can adjust 4 in. (6-9/16 to 10-9/16)
SLP-TRAP1 can adjust 1 4/8 in. (3 1/8 to 4 3/4)
SLP-TRAP2 can adjust 4 in. (5 1/4 to 9 1/4)
DVP-HPC1 can adjust 2-1/8 in. (4-1/4 to 6-3/8)
DVP-HPC2 can adjust 4-1/8 in. (6-3/8 to 10-1/2)










