User Guide

Heatilator • Caliber Mesh CD Series-SIT Valve • 4040-849 Rev J • 06/08 33
* When using SLP pipe, minimum clearances from the vent pipe to combustible materi-
als at inside wall firestops are: Top: 2-1/2 in. (64 mm)
Bottom: 1/2 in. (13 mm)
Sides: 1 in. (25 mm)
Note: Heat shields MUST overlap by a minimum of 1-1/2 in. (38 mm).
• DVP heat shield - designed to be used on a wall 4 in. to 7-1/4 in. (102 mm to 184
mm) thick.
• If wall thickness is less than 4 in. the existing heat shields must be field trimmed.
If wall thickness is greater than 7-1/4 in. an extended heat shield will be required.
• SLP heat shield - designed to be used on a wall 4-3/8 in. to 7-5/8 in. (111 mm to 194
mm thick).
• If wall thickness is less than 4-3/8 the existing heat shields must be field trimmed.
If wall thickness is greater than 7-5/8 in. an extended heat shield will be required.
3 in. (76 mm)
top clearance *
1 in. (25 mm)
clearance
bottom & sides
Heat
Shield
Wall
Shield
Firestop
Heat
Shield
WALL
3 in. (76 mm)
top clearance *
1 in. (25 mm)
clearance
bottom & sides
Heat
Shield
Wall
Shield
Firestop
Heat
Shield
WALL
3 in. (76 mm)
top clearance
1 in. (25 mm)
clearance around
vertical sections
(DVP Pipe Shown)
B*
Framing should be
constructed of 2 X 4
lumber or heavier.
The center of the
framing hole is
1 in. (25mm) above
the center of the
horizontal vent pipe.
A*
Vent framing hole.
DO NOT PACK WITH
INSULATION OR OTHER
MATERIAL.
* Measured to center
of pipe.
10 in.
12 in.
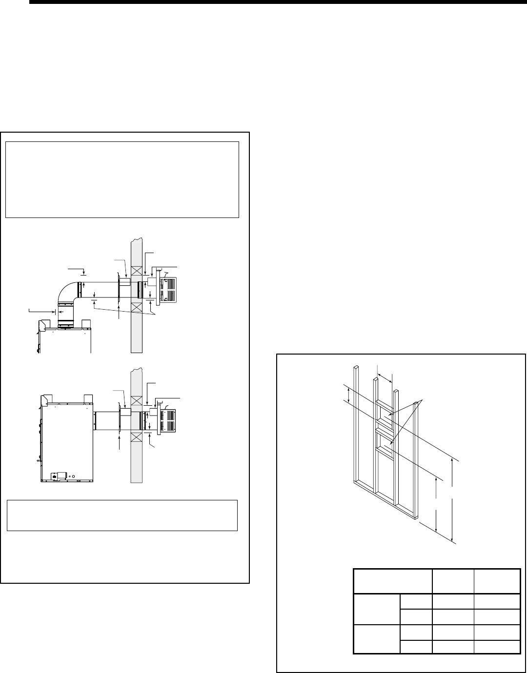
A. Pipe Clearances to Combustibles
WARNING! Risk of Fire! Maintain air space clearance to
vent. DO NOT pack insulation or other combustibles:
• Between ceiling fi restops
• Between wall shield fi restops
• Around vent system
Failure to keep insulation or other material away from
vent pipe may cause over heating and fi re.
8
8
Vent Clearances and Framing
B. Wall Penetration Framing
Combustible Wall Penetration
Whenever a combustible wall is penetrated, you must
frame a hole for the wall shield fi restop(s). The wall shield
fi restop maintains minimum clearances and prevents cold
air infi ltration.
• The opening must be framed on all four sides using the
same size framing materials as those used in the wall
construction.
• SLP pipe - A wall shield fi restop must be placed on each
side of an interior wall. A minimum 1 1/2 in. (38 mm)
overlap of attached heat shields must be maintained.
• DVP pipe - A wall shield fi restop is required on one side
only on interior walls. If your local inspector requires a
wall shield fi restop on both sides, then both wall shield
fi restops must have a heat shield attached to them.
• See Section 10.L. for information for regarding the
installation of a horizontal termination cap.
Figure 8.2 Wall Penetration
Figure 8.1 Horizontal Venting Clearances To Combustible Materi-
als
Model
D
Top Vent
E
Rear Vent
CD4236M
inches 42 1/4 27 1/4
mm 1073 692
CD4842M
inches 48 1/4 27 1/4
mm 1226 692
Non-Combustible Wall Penetration
If the hole being penetrated is surrounded by noncombus-
tible materials such as concrete, a hole with diameter one
in. greater than the pipe is acceptable.
Whenever a non-combustible wall is penetrated, the wall
shield fi restop is only required on one side and no heat
shield is necessary.










