User Guide

Heatilator • Caliber Mesh CD Series-SIT Valve • 4040-849 Rev J • 06/0822
Horizontal
Vertical
8-1/2 in.
8-1/2 in.
12 in.
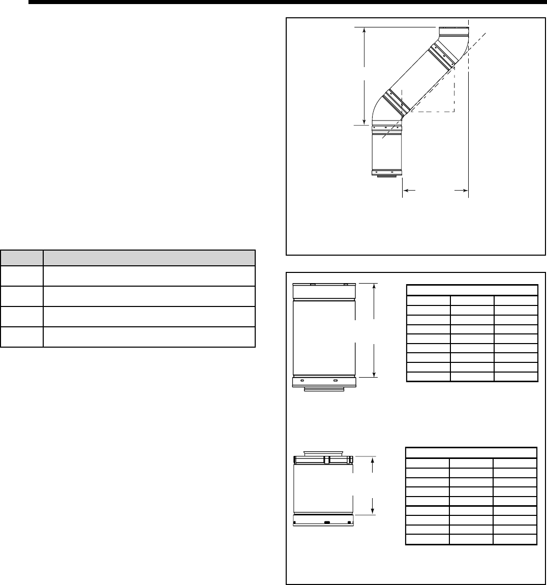
On 45° runs, 1 ft (.3 m) of diagonal is equal to 8-1/2 in. (216
mm) horizontal run and 8-1/2 in. (216 mm) vertical run.
A. Approved Pipe
This appliance is approved for use with Hearth & Home
Technologies DVP and/or SLP venting systems. Refer to
Section 16.B. for vent component information.
DO NOT mix pipe, fi ttings or joining methods from differ-
ent manufacturers.
The pipe is tested to be run inside an enclosed wall.
There is no requirement for inspection openings at each
joint within the wall.
WARNING! Risk of Fire or Asphyxiation. This appliance
requires a separate vent. DO NOT vent to a pipe serving a
separate solid fuel burning appliance.
C. Use of Elbows
Diagonal runs have both vertical and horizontal vent aspects
when calculating the effects. Use the rise for the vertical
aspect and the run for the horizontal aspect (see Figure
7.1).
Two 45º elbows may be used in place of one 90º elbow.
On 45º runs, one foot of diagonal is equal to 8-1/2 in. (216
mm) horizontal run and 8-1/2 in. (216 mm) vertical run. A
length of straight pipe is allowed between two 45º elbows
(see Figure 7.1).
Figure 7.1 Using Two 45° Elbows
7
7
Vent Information and Diagrams
B. Vent Table Key
The abbreviations listed in this vent table key are used in
the vent diagrams.
D. Measuring Standards
Vertical and horizontal measurements listed in the vent
diagrams were made using the following standards.
• Pipe measurements are shown using the effective length
of pipe (see Figure 7.2).
• Horizontal terminations are measured to the outside
mounting surface (fl ange of termination cap).
• Vertical terminations are measured to bottom of
termination cap.
• Horizontal pipe installed level with no rise.
Figure 7.2 Pipe Effective Length
Symbol Description
V
1
First section (closest to appliance) of vertical length
V
2
Second section of vertical length
H
1
First section (closest to appliance) of horizontal length
H
2
Subsequent sections of horizontal length
Effective
Height/Length
DVP Pipe
(see chart)
Pi
p
e
inches
mm
DVP4 4 102
DVP6 6 152
DVP12 12 305
DVP24 24 610
DVP36 36 914
DVP48 48 1219
DVP6A 3 - 6 76 - 152
DVP12A 3 - 12 76 - 305
Effective Height/Length
SLP Pipe
(see chart)
Pi
p
e
inches
mm
SLP4 4 102
SLP6 6 152
SLP12 12 305
SLP24 24 610
SLP36 36 914
SLP48 48 1219
SLP6A 2 - 6 51 - 152
SLP12A 2 - 12 51 - 305
Effective Height/Length
Effective
Height/Length










