User Guide

Heatilator • Caliber Mesh CD Series-SIT Valve • 4040-849 Rev J • 06/08 17
5
5
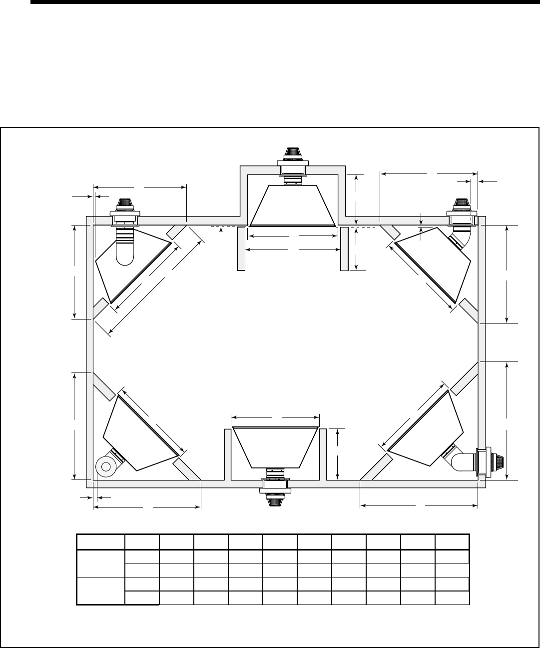
Framing and Clearances
A. Select Appliance Location
When selecting a location for the appliance it is important
to consider the required clearances to walls (see Figure
5.1).
WARNING! Risk of Fire or Burns! Provide adequate
clearance around air openings and for service access. Due
to high temperatures, the appliance should be located out
of traffi c and away from furniture and draperies.
NOTICE: Illustrations refl ect typical installations and are
FOR DESIGN PURPOSES ONLY. Illustrations/diagrams
are not drawn to scale. Actual installation may vary due to
individual design preference.
In addition to these framing dimensions, also reference the
following sections:
• Clearances and Mantel Projections (Section 3.C.)
• Vent Clearances and Framing (Section 6)
Rear vent
One 45° elbow
Horiz Term
Rear Vent
Two 90° elbows
Horiz Term
Rear Vent
One 90° elbow
Vert Term
Top Vent
One 90° elbow
Horiz Term
No elbows
Horiz Term
A
A
A
G
A
A
C
D
B
B
F
1 in. (25 mm) min.
pipe to combustibles
I
E
1/2 in. (13 mm) min.
appliance to
combustibles
E
I
1 in. (25 mm) mi
n
pipe to
combustibles
F
1/2 in. (13 mm) min.
appliance to
combustibles
Alcove
Installation
C
H
Drywall
A
Figure 5.1 Appliance Locations
Model # A B C D E F G H I
CD4236M in. 42 50 5/8 23 71 5/8 50 5/8 52 5/8 43 48 59 3/4
mm 1067 1286 584 1819 1286 1337 1092 1219 1518
CD4842M in. 48 55 1/4 23 78 1/4 55 1/4 55 1/4 49 48 59 3/4
mm 1219 1403 584 1988 1403 1403 1245 1219 1518










