- Hearth & Home Technologies Gas Fireplace Owner's Manual Installation and Operation Manual

Heat & Glo • 8000CF-OAK-IPI • 2059-900 Rev. Q • 11/0846
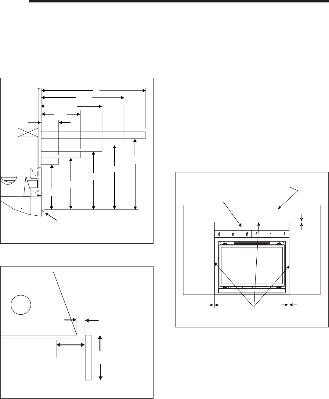
A. Mantel and Wall Projections
WARNING! Risk of Fire! Comply with all minimum clear-
ances as specifi ed. Framing closer than the minimums list-
ed must be constructed entirely of noncombustible materi-
als (i.e., steel studs, concrete board, etc.) Failure to comply
could cause fi re.
Note: All
measurements
in inches.
Combustible Mantels
Figure 13.2 Combustible Mantel Leg or Wall Projections
(Acceptable on both sides of opening)
Combustible Mantel Legs or Wall Projections
Figure 13.1 Minimum Vertical and Maximum Horizontal
Dimensions of Combustibles
B. Facing Material
• Metal front faces may be covered with non-combustible
materials only.
• Facing and/or fi nishing materials must not interfere with
air fl ow through louvers, operation of louvers or doors,
or access for service.
• Facing and/or fi nishing materials must never overhang
into the glass opening.
• Observe all clearances when applying combustible
materials.
• Seal joints between the fi nished wall and appliance top
and sides using a 300 ºF minimum sealant. Refer to
Figure 13.3.
WARNING! Risk of Fire! DO NOT apply combustible
materials beyond the minimum clearances. Comply with
all minimum clearances to combustibles as specifi ed in
this manual. Overlapping materials could ignite and will
interfere with proper operation of doors and louvers.
Figure 13.3 Noncombustible Facing Diagram
SEALANT MATERIAL
0 in.
FINISH WALL MATERIAL MAY BE
COMBUSTIBLE - TOP AND SIDES
0 in.
0 in.
NON-COMBUSTIBLE
BOARD
18
14-1/4
10-1/2
6-3/4
3
7-3/4
8-7/8
10
11-1/8
12-1/4
MEASUREMENTS FROM
TOP EDGE OF HOOD
1 in.
MIN.
3 in.
MIN.
3 ft.
MAX.
TOP VIEW
13
13
Finishing










