- Hearth & Home Technologies Gas Fireplace Owner's Manual Installation and Operation Manual

Heat & Glo • 8000CF-OAK-IPI • 2059-900 Rev. Q • 11/0820
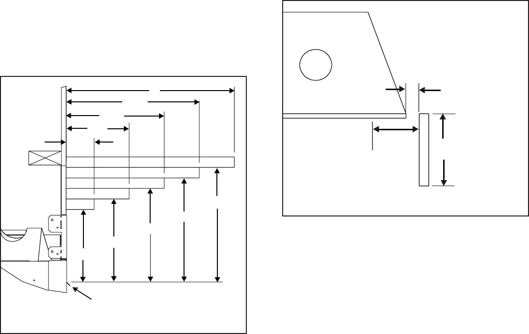
D. Mantel and Wall Projections
WARNING! Risk of Fire! Comply with all minimum clear-
ances as specifi ed. Framing or fi nishing material closer than
the minimums listed must be constructed entirely of noncom-
bustible materials (i.e., steel studs, concrete board, etc).
Figure 5.3 Minimum Vertical and Maximum Horizontal
Dimensions of Combustibles
Note: All
measurements
in inches.
Figure 5.4 Combustible Mantel Leg or Wall Projections
(Acceptable on both sides of opening)
Combustible Mantels
Combustible Mantel Legs or Wall Projections
18
14-1/4
10-1/2
6-3/4
3
7-3/4
8-7/8
10
11-1/8
12-1/4
MEASUREMENTS FROM
TOP EDGE OF HOOD
1 in.
MIN.
3 in.
MIN.
3 ft.
MAX.
TOP VIEW










