- Hearth & Home Technologies Gas Fireplace Owner's Manual Installation and Operation Manual

Heat & Glo • 8000CF-OAK-IPI • 2059-900 Rev. Q • 11/0818
5
5
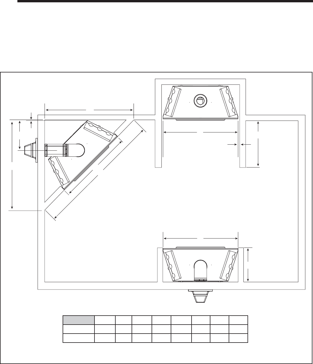
Framing and Clearances
A. Selecting Appliance Location
When selecting a location for the appliance it is important to
consider the required clearances to walls (see Figure 5.1).
WARNING! Risk of Fire or Burns! Provide adequate
clearance around air openings and for service access.
Due to high temperatures, the appliance should be locat-
ed out of traffi c and away from furniture and draperies.
NOTICE: Illustrations refl ect typical installations and are
FOR DESIGN PURPOSES ONLY. Illustrations/diagrams
are not drawn to scale. Actual installation may vary due to
individual design preference.
Figure 5.1 Appliance Locations
A
G
F
A
E
D
MINIMUM
E
E
C
H
B
ABC D E FGH
Inches 55-7/8 1/2 79 1 49 38-7/8 22 19-3/4
Millimeters 1419 13 2007 25 1219 987 559 483










