Owner's manual
Table Of Contents

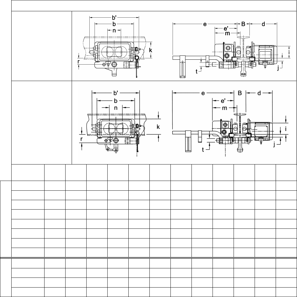
2.2 Dimensions
Table 2-2 Trolley Dimensions
For ER2/NER2001 to
ER2/NER2020
(inc.ER2/NER2030C)
For ER2/NER2025
and ER2/NER2050
Product
Code
b b' d e e' i j k m n r t
Single Speed
MR2010L/S 12.4 15.6 8.7 20.3 7.1 3.74 0.9 5.1 8.1 4.3 2.0 1.22
MR2020L/S 12.8 16.4 8.9 20.5 7.2 4.33 1.1 4.9 8.4 4.7 2.4 1.42
MR2030L/S 13.4 17.4 8.9 20.5 7.3 4.92 1.1 5.2 8.5 5.2 2.7 1.69
MR2050L/S 15.8 19.8 11.1 20.8 7.6 5.51 1.7 5.7 9.2 5.9 3.4 2.13
MR2080L 19.7 22.9 11.2 20.9 8.8 6.89 3.4 6.9 10.6 7.5 6.0 2.76
MR2100L 19.7 22.9 11.2 20.9 8.8 6.89 3.0 6.9 10.6 7.5 6.0 2.76
MR2150L 40.2 43.4 11.2 20.9 8.8 6.89 3.2 6.9 10.6 20.5 6.0 2.76
MR2200L 40.2 43.4 11.2 20.9 8.8 6.89 3.0 6.9 10.6 20.5 6.0 2.76
Dual Speed
MR2010SD 12.4 15.6 8.7 20.3 7.1 3.74 0.9 5.1 8.1 4.3 2.0 1.22
MR2020SD 12.8 16.4 8.9 20.5 7.2 4.33 1.1 4.9 8.4 4.7 2.4 1.42
MR2030SD 13.4 17.4 8.9 20.5 7.3 4.92 1.1 5.2 8.5 5.2 2.7 1.69
MR2050SD 15.8 19.8 11.1 20.8 7.6 5.51 1.7 5.7 9.2 5.9 3.4 2.13
10