Manual
Manuals
Brands
Harrington Hoists and Cranes Manuals
Hoist
MCR Trolley
11
12
13
14
15
16
17
18
19
20
17
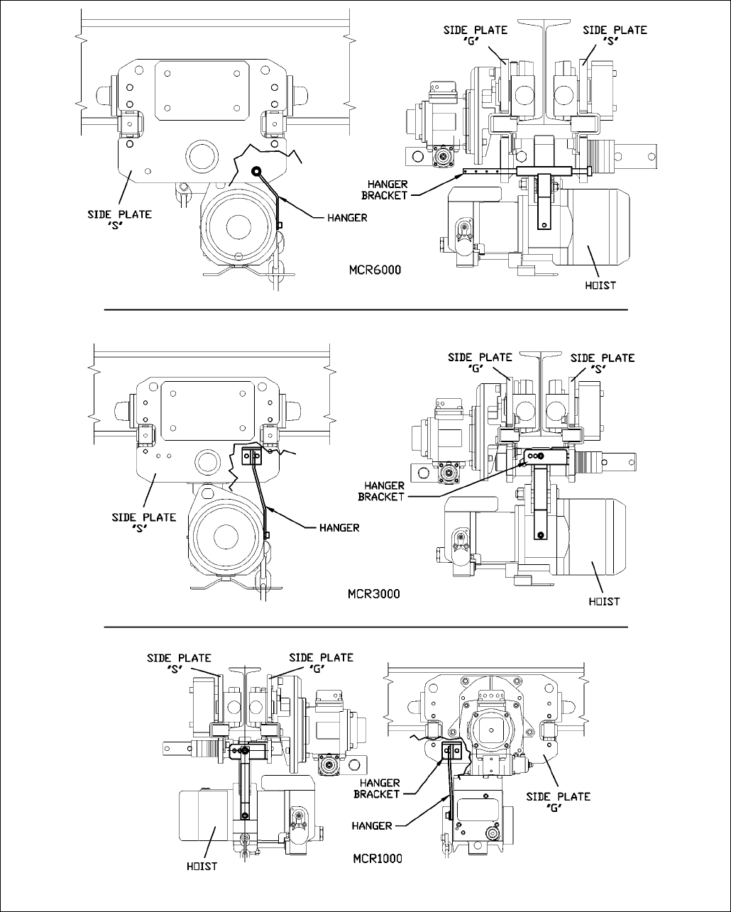
Figure 3-7
Hangar Bracket and B
racket Attachment
1
...
...
15
16
17
18
19
...
...
52