Manual

14
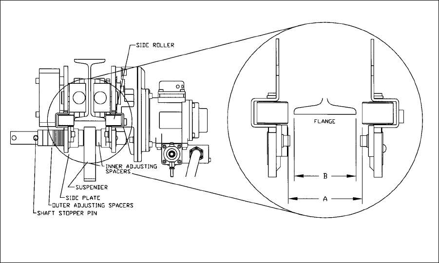
3.1.6 Adjusting the trolley width - After assembling trolley per Section 3.1.5, check the adjustment as follows:
1) Refer to Figure 3-6.
2) Make sure both side plates are spread fully outward and Measure Dimension "A". Compare dimension
"A" with the following values:
For MCR1000 trolleys, "A" must be 1/8 to 3/16" greater than "B".
For MCR3000 and MCR6000, "A" must be 7/32 to 9/32" greater than "B".
3) If "A" does not fall within the specified range, move spacers from inner to outer or from outer to inner as
necessary to obtain the proper "A" dimension, irrespective of the numbers in Table 3-2.
4) After obtaining the proper adjustment, install the Shaft Stopper Pin in Hole A, insert the Split Pin into the
Shaft Stopper Pin, and securely bend both branches of the split pin.
Figure 3-6 Adjusting the Trolley










