Manual

13
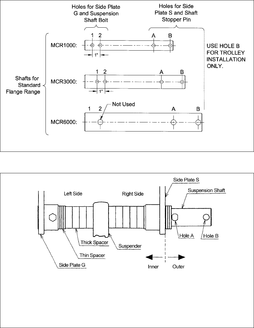
Figure 3-4 Suspension Shafts
Note: Inner Spacer rows on Table 3-2 list two numbers. First number is the quantity of spacers located on the
left side of the Suspender or Suspension Plates, second number is the quantity on the right side.
Example: 1 + 2 Adjusting Spacers on the right side (Side Plate S side)
Adjusting Spacers on the left side (Side Plate G side)
Figure 3-5 Spacers Arrangement










