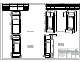
Specification

Detailed View
belongs to
This profile
BT2135B-WH
Item ID
Front Thickness
[in] mm
Door Thickness
[in] mm
BT2135B-WH [.63] 16 [.63] 16
PROPRIETARY AND CONFIDENTIAL
+.039[1]-.039[1]
UNLESS OTHERWISE
SPECIFIED
DIMENSIONS ARE IN
MM AND [INCHES]
TOLERANCES ARE
SCALE:1:2
Profile: Benton White
THE INFORMATION
CONTAINED IN THIS DRAWING
IS THE SOLE PROPERTY OF
WOODCRAFTERS. ANY
REPRODUCTION IN PART OR
AS A WHOLE WITHOUT THE
WRITTEN PERMISSION OF
WOODCRAFTERS IS
PROHIBITED.

Summary of content (2 pages)