Specification Sheet

Dimensional data not binding. We reserve the right to alter specifications without notice.
Dimensions in mm
Inches are approximate
www.hafele.com/us
AH
1.90
1
Sliding Door Hardware-Wood
Top Hung System
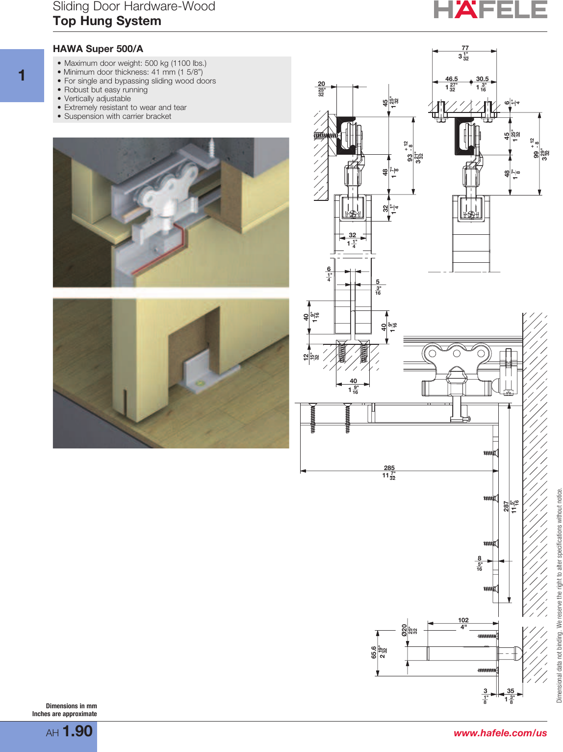
HAWA Super 500/A
• Maximum door weight: 500 kg (1100 lbs.)
• Minimum door thickness: 41 mm (1 5/8”)
• For single and bypassing sliding wood doors
• Robust but easy running
• Vertically adjustable
• Extremely resistant to wear and tear
• Suspension with carrier bracket
1"
4
6
45
1
25"
32
1
7"
8
48
77
3
1"
32
1
3"
16
30.5
1
27"
32
46.5
99
3
29"
32
+ 12
- 8
285
11
7"
32
287
11
5"
16
5"
16
8
102
4"
1"
8
3
1
3"
8
35
25"
32
Ø20
65.6
2
19"
32
25"
32
20
45
1
25"
32
32
1
1"
4
32
1
1"
4
1"
4
6
3"
16
5
40
1
9"
16
40
1
9"
16
40
1
9"
16
15"
32
12
93
3
21"
32
+ 12
- 8
48
7"
8
1