- Guardian Air-Cooled Gasoline & LP RV Generator Specifications

Guardian RV Generator - QP-40
Generac Power Systems, Inc. • P.O. Box 297, Whitewater, WI 53190 • guardiangenerators.com
©2008 Generac Power Systems, Inc. All rights reserved. All specifications are subject to change without notice. Bulletin 0179030SBY/Printed in U.S.A. 08.08
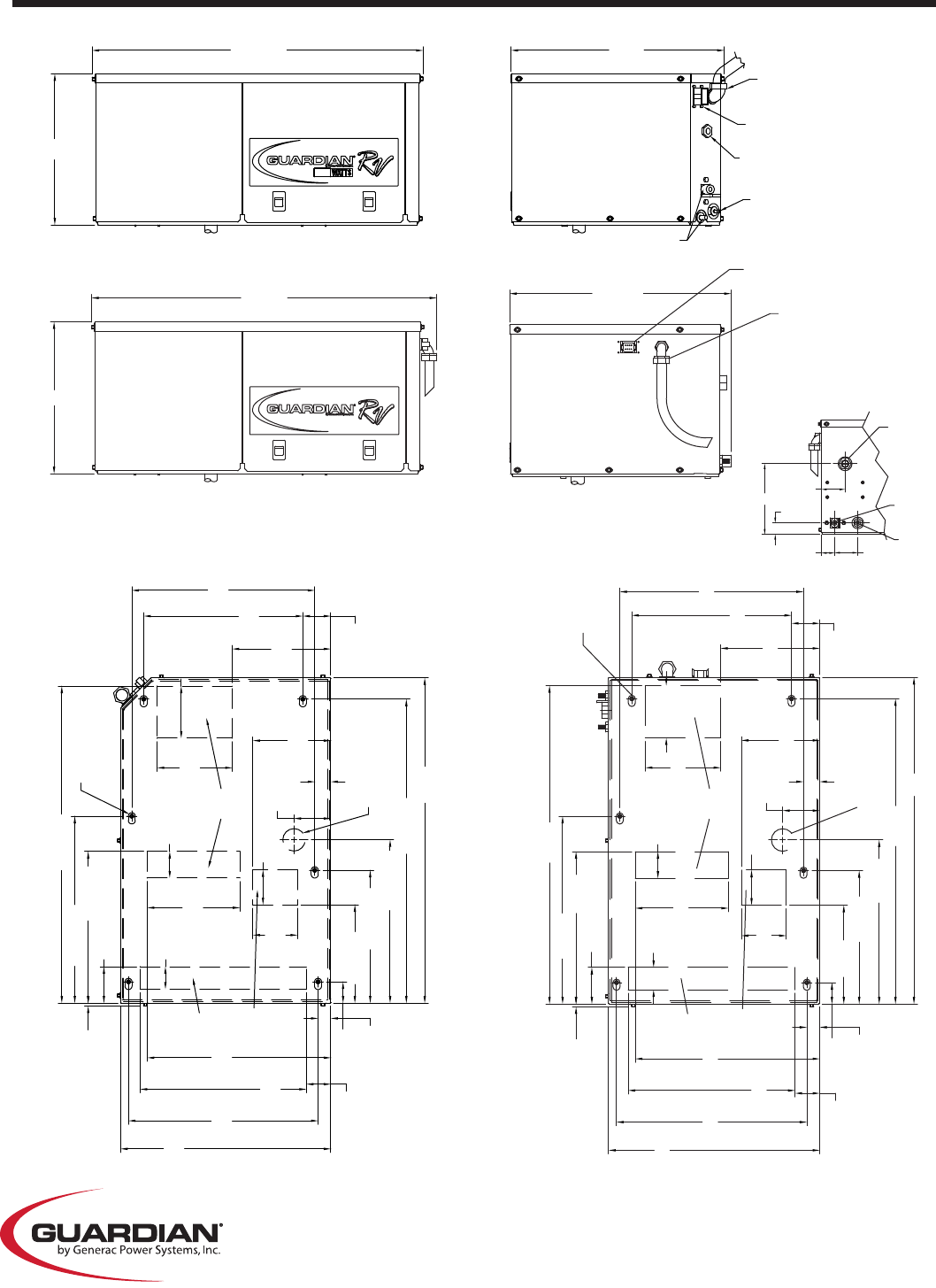
HOT AIR
EXHAUST
TAIL PIPE
EXIT
OIL DRAIN
AIR
INTAKE
48.1
[ 1 7/8"]
222.7
[ 8 3/4"]
300.7
[ 11 13/16"]
369.7
[ 14 9/16"]
688.3
[ 27 1/8"]
29
[ 1 1/8"]
55.5
[ 2 3/16"]
376.5
[ 14 13/16"]
5/16"-18 WELDNUTS
(6 PLACES)
82.5
[ 3 1/4"]
343.4
[ 13 1/2"]
423.2
[ 16 11/16"]
717.7
[ 28 1/4"]
50.8
[2"]
118
[ 4 5/8"]
223.5
[ 8 13/16"]
60
[ 2 3/8"]
210
[ 8 1/4"]
176.6
[ 6 15/16"]
83.5
[ 3 5/16"]
429.5
[ 16 15/16"]
414.5
[ 16 5/16"]
360.5
[ 14 3/16"]
63.5
[ 2 1/2"]
416
[ 16 3/8"]
170
[ 6 11/16"]
VIEW FROM TOP
79
[ 3 1/8"]
101
[ 4"]
TYP.
6.7
[ 1/4"]
736.4
[ 29"]
476.4
[18 3/4"]
36.5 [ 1 7/16"]
REF.
749.8
[ 29 1/2"]
342.2
[ 13 1/2"]
FRONT DOOR ACCESS FOR
ALL REQUIRED MAINTENANCE
REF.
483.1
[ 19"]
AC OUTPUT
HARNESS
REMOTE PANEL
CONNECTOR
BATTERY
CONNECTIONS
FUEL FILTER
EXTERNAL VACUUM PORT
(04709-0 ONLY) 1/4" NPT
NOTE: ALL AIR INTAKES AND EXHAUST OUTLETS MUST BE
KEPT CLEAR OF ANY OBSTRUCTIONS. ALL OPEN AREA
IS REQUIRED FOR COOLING.
HOT AIR
EXHAUST
TAIL PIPE
EXIT
OIL DRAIN
AIR
INTAKE
48.1
[1 7/8"]
222.7
[8 3/4"]
300.7
[11 13/16"]
369.7
[14 9/16"]
688.3
[27 1/8"]
29
[1 1/8"]
55.5
[2 3/16"]
376.5
[14 13/16"]
5/16"-18 WELDNUTS
(6 PLACES)
82.5
[3 1/4"]
343.4
[13 1/2"]
423.2
[16 11/16"]
717.7
[28 1/4"]
50.8
[2"]
118
[4 5/8"]
223.5
[8 13/16"]
60
[2 3/8"]
210
[8 1/4"]
176.6
[6 15/16"]
83.5
[3 5/16"]
429.5
[16 15/16"]
414.5
[16 5/16"]
360.5
[14 3/16"]
63.5
[2 1/2"]
416
[16 3/8"]
170
[6 11/16"]
79
[3 1/8"]
101
[4"]
TYP.
6.7
[1/4"]
736.4
[29"]
476.4
[18 3/4"]
36.5
[1 7/16"]
39.6
[1 9/16"]
69.6
[2 3/4"]
34.3
[1 3/8"]
71.2
[2 13/16"]
211.3
[8 5/16"]
NEG. BAT.
CONNECTION
POS. BAT.
CONNECTION
LP FUEL INLET
CONNECTIONS IN
BACK OF GENERATOR
342.2
[13 1/2"]
778.9
[30 11/16"]
REF.
FRONT DOOR ACCESS FOR
ALL REQUIRED MAINTENANCE
REMOTE PANEL
CONNECTOR
500.2
[19 11/16"]
REF.
AC OUTPUT
HARNESS
MODEL 4709 GAS
MODEL 4709 GAS
MODEL 4701 LPG
MODEL 4701 LPG




