- Guardian Technologies, LLC Telephone User Manual
Table Of Contents

Guardian Telecom Inc.
Installation and Operation
Model HR70
Page 4
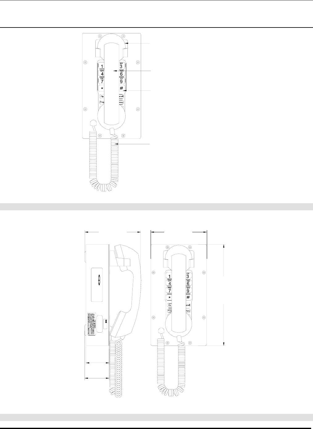
DURABLE CURLY CORD
SEALED MAGNETIC REED
HOOK SWITCH
HIGH IMPACT ABS HANDSET WITH
HEARING AID COMPATIBLE EARPIECE
MEMBRANE KEYPAD WITH
ADDITIONAL FEATURES
Figure 1 - Features
5.2" [132mm]
SN: H7XXXXX
1012 6721 A
2.1" [52mm]
2.2" [55mm]
Industry Canada
Industrie Ca nada
7000 Fisher Road S.E.
Calgary, Alberta, Canada T2H 0W3
Tel: (403) 258-3100
Fax: (403) 253-4967
www.guardiantelecom.com
Telecom Inc.
Guardian
9.0" [229mm]
5.0" [127mm]
Figure 2 - Overall Dimensions










