User's Manual

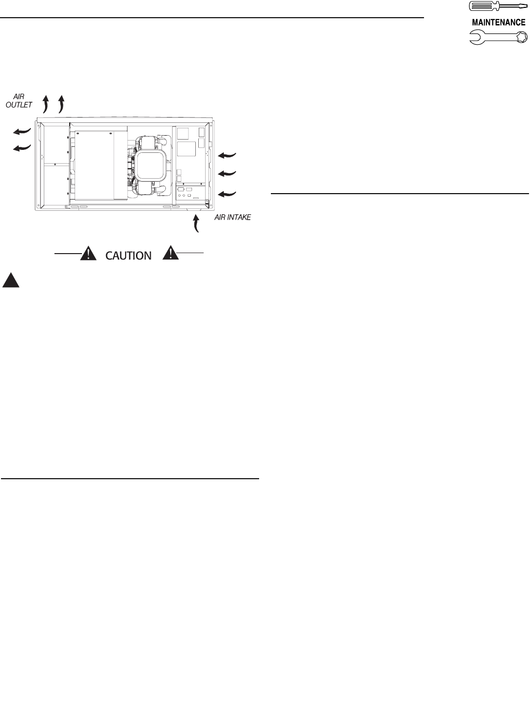
Figure 4.9 – Cooling Vent Locations
The maximum ambient temperature for the
generator is 48.9° C (104° F).
4.10 ATTENTION AFTER SUBMERSION
If the generator has been submerged in water,
it MUST NOT be started and operated. Following any sub-
mersion in water, have a Generac Authorized Dealer thor-
oughly clean and dry the generator.
4.11 CORROSION PROTECTION
Periodically wash and wax the enclosure using automo-
tive type products. Frequent washing is recommended
in salt water/coastal areas. Spray engine linkages with a
light oil such as WD-40.
4.12 OUT OF SERVICE PROCEDURE
4.12.1 REMOVAL FROM SERVICE
If the generator cannot be exercised every seven days,
and it is to be out of service longer than 90 days, pre-
pare the generator for storage as follows:
1. Start the engine and let it warm up.
2. Close the fuel shutoff valve in the fuel supply line
and allow the unit to shut down.
3. Once the unit has shut down, it will signal a low oil
fault.
4. Set the AUTO/OFF/MANUAL switch to OFF and turn
off the utility power to the transfer switch. Remove
both fuses from the generator control panel.
5. While the engine is still warm from running, drain
the oil completely. Refill the crankcase with oil. See
”Engine Oil Recommendations,” Section 4.3.1.
6. Attach a tag to the engine indicating the viscosity
and classification of the oil in the crankcase.
7. Remove the spark plug(s) and spray fogging agent
into the spark plug(s) threaded openings. Reinstall
and tighten the spark plug(s).
8. Remove the battery and store it in a cool, dry room
on a wooden board. Never store the battery on any
concrete or earthen floor.
9. Clean and wipe the entire generator.
4.12.2 RETURN TO SERVICE
To return the unit to service after storage, proceed
as follows:
1. Set the generator’s main circuit breaker to its OFF
(or open) position.
2. Verify that utility power is turned off and that the
AUTO/OFF/MANUAL switch is set to OFF.
3. Check the tag on the engine for oil viscosity and
classification. Verify that the correct recommended
oil is used in the engine (see Section 4.3.1). If nec-
essary, drain and refill with the proper oil.
4. Check the state of the battery. Fill all cells of
unsealed batteries to the proper level with distilled
water. DO NOT USE TAP WATER IN THE BATTERY.
Recharge the battery to 100 percent state of charge,
or, if defective, replace the battery. See
“Specifications,” Section 1.5, for type and size.
5. Clean and wipe the entire generator.
6. Remove both fuses from the generator control
panel.
7. Reconnect the battery. Observe battery polarity.
Damage may occur if the battery is connected incor-
rectly. Replace the fuses in the generator control
panel.
8. Open the fuel shutoff valve.
9. Start the unit by moving the AUTO/OFF/MANUAL
switch to MANUAL. Allow the unit to warm up thor-
oughly.
10. Stop the unit and set the AUTO/OFF/MANUAL
switch to AUTO. Set the generator’s main circuit
breaker to its ON (or closed) position.
11. Turn on the utility power to the transfer switch.
12. The generator is now ready for service.
NOTE:
If the battery was dead or disconnected, the exercise
timer must be reset.
!
Section 4 — Maintenance
Guardian Air-cooled 7 kW, 12 kW and 15 kW Generators
Generac® Power Systems, Inc. 21










