- Guardian Air-Cooled Automatic Standby Generator Installation And Owner's Manual

Section 1 — General Information
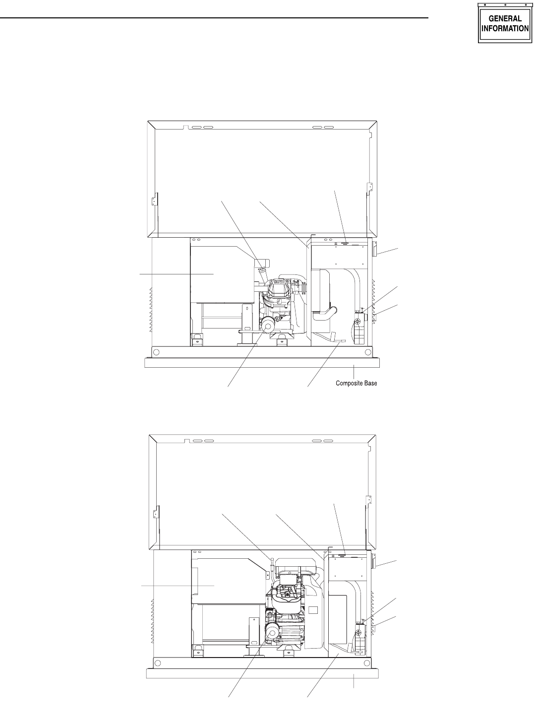
Guardian Air-cooled 7 kW, 12 kW and 15 kW Generators
1.4 THE GENERATOR
Exhaus
t
En
c
lo
su
r
e
Oi
l
Di
p
stic
k
D
a
t
a
D
ecal
C
ontro
l
P
a
n
el
F
uel
Re
g
ulato
r
F
uel
Inl
et
G
F
CI
O
utle
t
O
il Filte
r
Batter
y
Com
p
artmen
t
Exh
aust
En
c
lo
su
r
e
O
il Filte
r
Batter
y
Com
p
artmen
t
F
uel
Inl
et
G
F
CI
O
utle
t
C
ontro
l
P
a
n
el
D
a
t
a
D
ecal
O
i
l
Di
p
stic
k
F
uel
Re
g
ulato
r
Com
p
osite Bas
e
Figure 1.2 – 12 kW/15 kW, V-twin GT-990/760 Engine
Figure 1.1 – 7 kW, Single Cylinder GH-410 Engine
Generac® Power Systems, Inc. 5










