- Guardian Air-Cooled Automatic Standby Generator Installation And Owner's Manual

Section 6 — Electrical Data
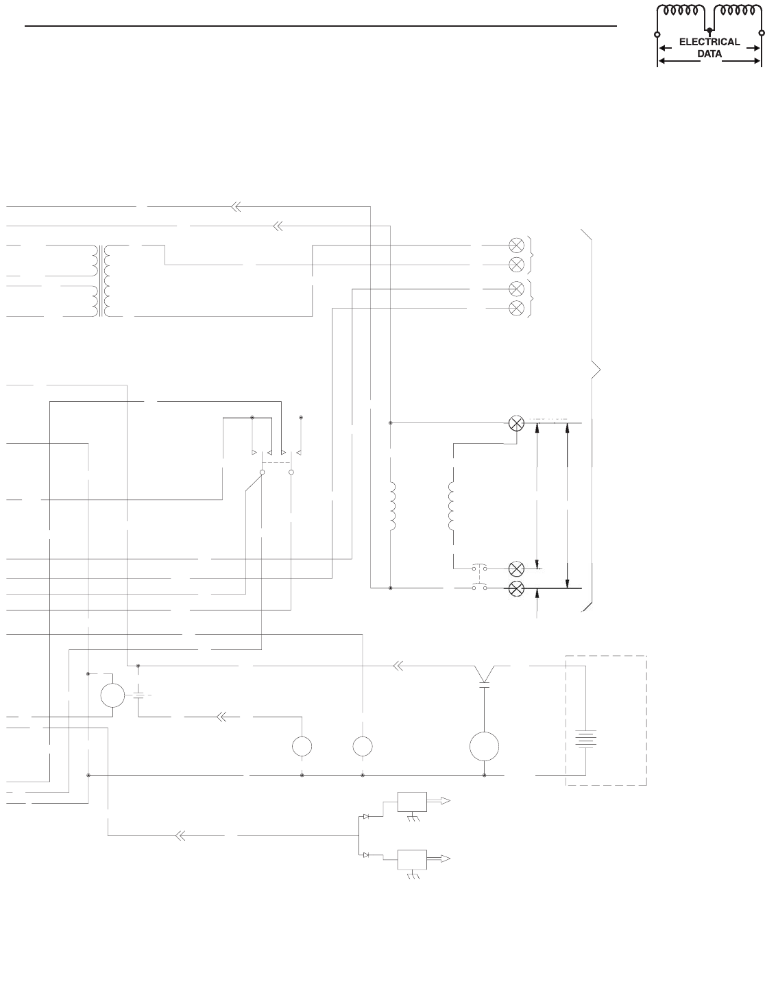
Guardian Air-cooled 7 kW, 12 kW and 15 kW Generators
Electrical Schematic – 12 & 15 kW – Drawing No. 0D8501-B
2
39
IM2
1
5
1
8
S
P
2
24
0V
IM1
0
1
94
17
1
5
2
3
1
5
2
39
S
W
1
1
94
1
5A
22
11
2
3
11
22
11
S
P
1
44
WINDIN
G
12
0V
12
0V
33
NEUTRAL
N2
N1
2
3
CUS
T
O
ME
R
CO
NNE
C
TI
O
N
S
1
94
0
0
SC
F
S
1
6
14
BATTERY
CUS
T
O
ME
R
SU
PPLIE
D
SM
12V
SC
N2
N1
1
3
TX
56
V
A
1VA
C
2-
6
C
2-
5
C
B
1
(
STATOR
)
14
RED
BLA
CK
C
2-
1
C
1-
1
C
1-
5
0
0
D
D
SCR
1
6
1
3
0
0
56
P
O
WE
R
N1
N2
U
TILIT
Y
24
0
VA
C
INP
UT
RELAY
TRAN
S
FE
R
12V
dc
CO
I
L
17
17
1
5
1
5
0
22
5A
224A
22
5
224
1
3
1
3
1
5A
1
8
1
8
Generac® Power Systems, Inc. 27










