- Guardian Liquid-cooled Recreational Vehicle Generator Owner's Manual and Installation Instructions

Generac
®
Power Systems, Inc. 25
Figure 2.5 – Typical Noise Abatement
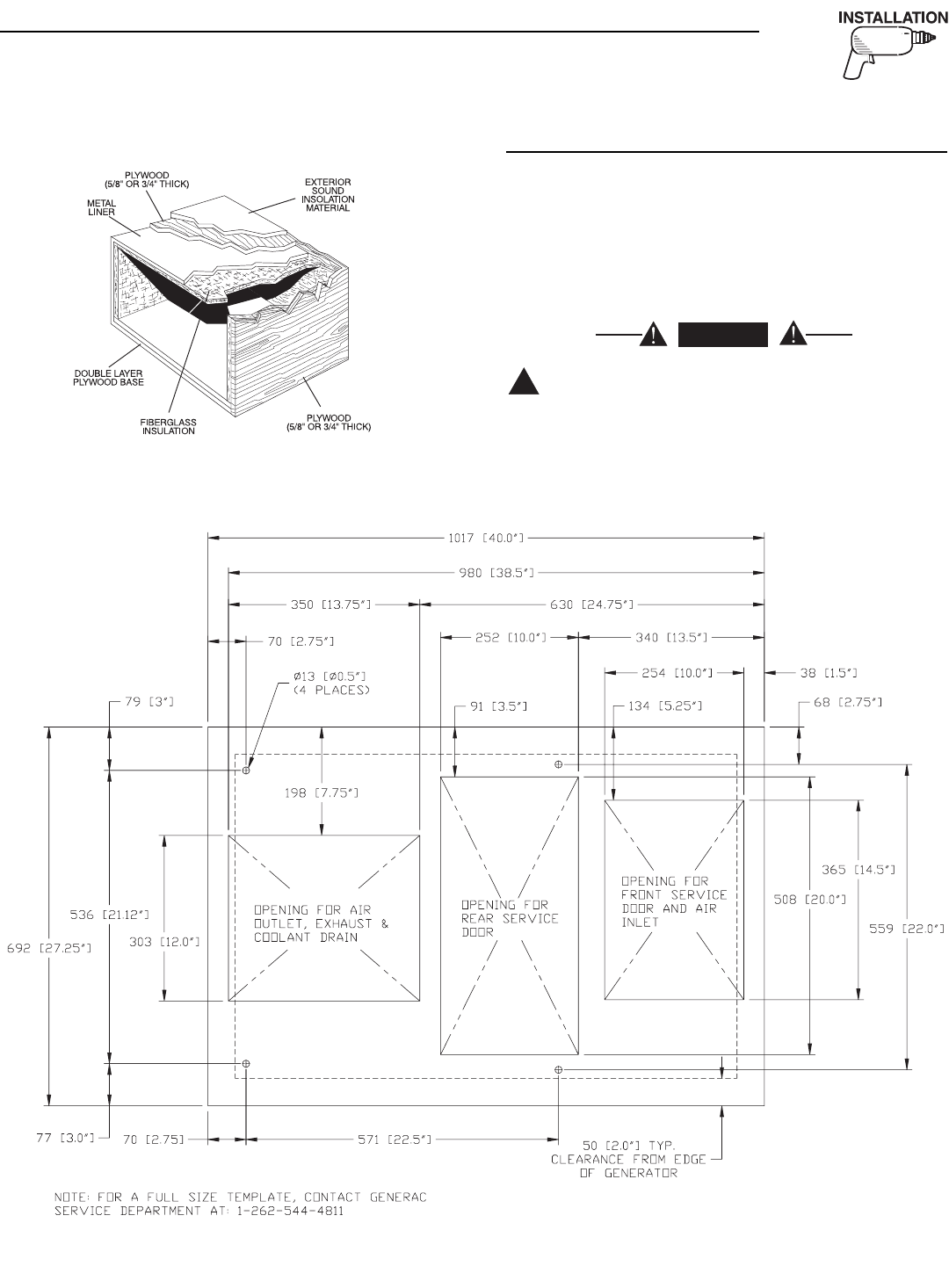
2.2.4 COMPARTMENT FLOOR CUTOUTS
Provide openings in the generator compartment for
the following items (Figure 2.6):
• Engine exhaust and cooling air outlets
• Generator cooling air inlet and front service door
• Four holes for passage of generator mounting
bolts. See Section 2.1.4.
• Rear service door.
Fuel lines and exhaust piping must not pene-
trate into the vehicle living area.
!
DANGER
◆
Section 2 – Installation
QUIETPACT™ 75D Recreational Vehicle Generator
Figure 2.6 – Compartment Floor Cutout










