User Guide

19
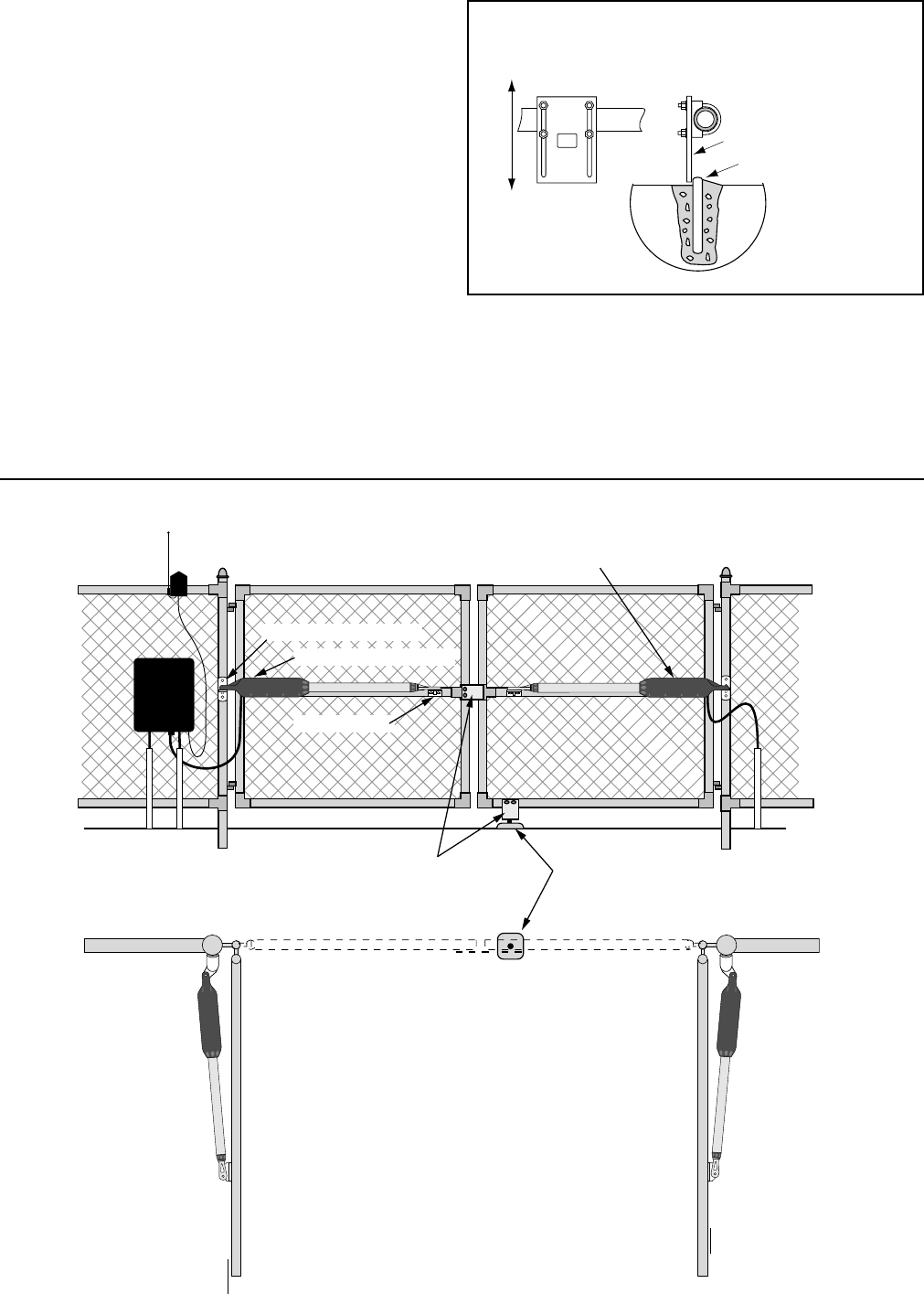
Post Bracket Assembly
Gate Bracket
MASTER Gate Opener
Closed Position
Positive Stop Plates
SLAVE Gate Opener
OPTIONAL Closed Position
Ground Stop Post
®
1-800-543-GATE (4283)
www.mightymule.com
At this stage of the installation, the operators should be installed on the
gate leaves and closed position stops should be in place.
Step 3
Attach a vertical closed position stop plate to the SLAVE
gate.
Using appropriate hardware for your type of gate attach the
vertical closed position stop plate to the SLAVE gate frame
at the point where it will come in contact with the ground stop post.. Do not tighten it completely at this time. You must slide
the closed position stop plate toward the ground stop until they touch (Illustration C). Once you have moved the stop plate to
the correct position, tighten its hardware completely.
NOTE: For a push-to-open installation (gate opens out from the property) attach the closed position stop plate to the outside
of the gate.
Step 2
Install a low profile ground stop (not provided) beneath the
SLAVE gate stop plate.
The ground stop needs to be positioned near the end of the
gate as shown in Illustration A and may be made of metal
or concrete and should be firmly secured in the ground (we
recommend setting it in concrete).
Closed Position Stop Plate mounted
on the gate leaf that CLOSES FIRST
Closed Position Stop Plate
Low Profile Ground Stop
in Near the Center of Driveway
FRONT VIEW
SIDE VIEW
Mount Vertically
Illustration C










