User Guide

18
Closed Position
Stop Plates
Gate Hinge
CONTROL BOX
Gate Hinge
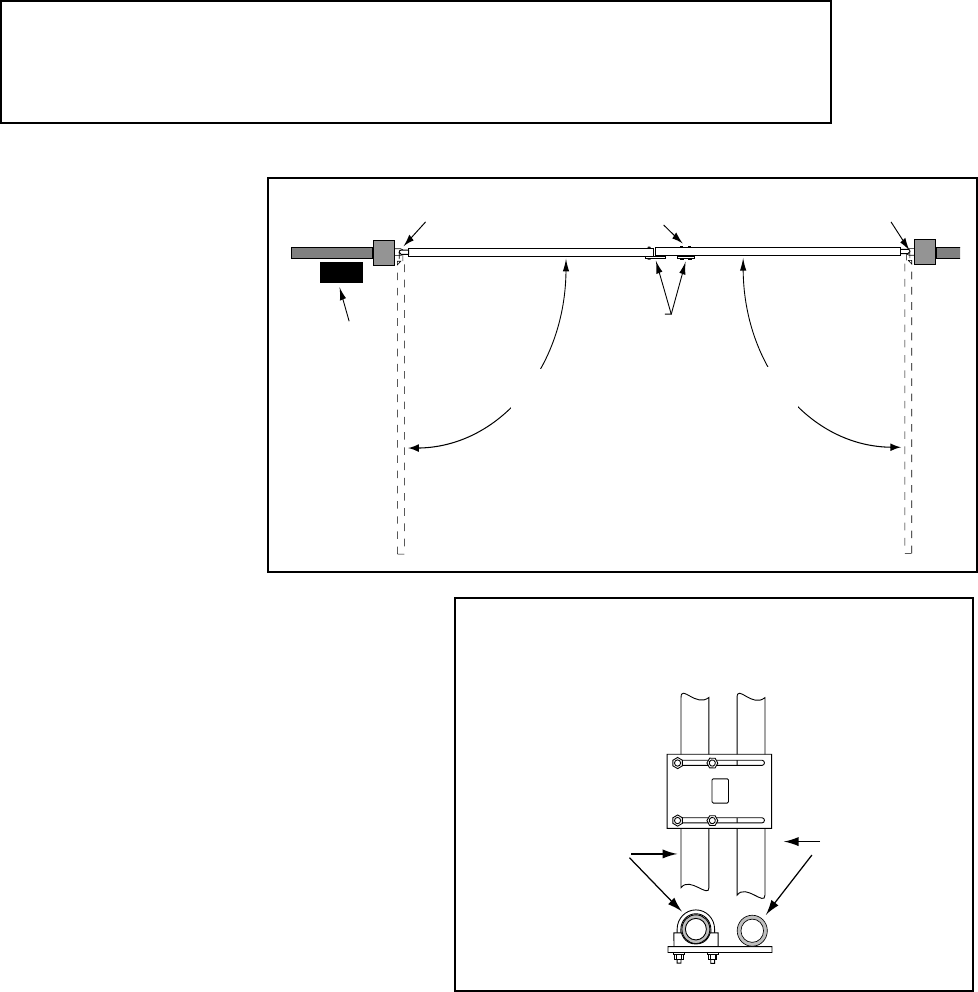
The gate leaf can open
up to 110˚ (max.)
Optional Ground Stop
(beneath gate)
The gate leaf can open
up to 110˚ (max.)
MASTER GATE SLAVE GATE
Installation of the Closed Position Stops
The GTO/PRO® 3000/3200 Gate Operators firmly hold the gates in the closed position using
positive stops. The positive stops help stabilize the gate leaves in the closed position. To further
enhance stability and security, we strongly recommended using an optional GTO/PRO® Automatic
Gate Lock (see Accessory Catalog) with your dual gate.
IMPORTANT: You need
to determine which side of the
driveway you will mount the
control box. From this point on
the gate and gate operator on the
same side as the control box will
be referred to as the MASTER
gate and gate operator. The gate
and gate operator on the opposite
side of the driveway from the
control box will be referred to
as the SLAVE gate and gate
operator.
Illustration A
Closed Position Stop Plate mounted
horizontally on metal post with U-bolts.
SLAVE Gate Frame
MASTER Gate Frame
TOP VIEW
FRONT VIEW
Step 1
Attach the horizontal closed position stop plate to the
MASTER gate leaf.
Detach the gate operators from the gates and move the
gates to their closed position (Illustration A). Using
appropriate hardware for your type of gate (U-bolts for
tube or chain link; screw or bolts for wood or metal)
attach the closed position stop plate (horizontally) about
mid height on the MASTER gate frame. Do not tighten
it completely at this time. Slide the stop plate toward the
frame of the SLAVE gate leaf until they touch (Illustration
B). Once you have moved the stop plate to the correct
position, tighten its hardware completely.
NOTE:
The optional ground stop post is used to provide a secure point for the SLAVE gate to close
against. If you will be using the GTO/PRO Horizontal Gate Lock accessory with your gate operator
system, the closed position ground stop is REQUIRED, as shown in Steps 2 and 3 on the next page.
Illustration B










