User Guide

12
Preparation of the Gate
Step 1
The gates must be plumb, level, and swing freely on
their hinges. Wheels must not be attached to the gates.
The gates must move throughout their arc without
binding or dragging on the ground. Note that gates
over 250 lb. should have ball bearing hinges with grease
fittings.
Step 2
The fence posts must be secured in the ground with
concrete so they will minimize twist or flex when the
operators are activated. We recommend you position
the operators near the centerline of the gates to keep
the gates from twisting and flexing. The addition of
horizontal or vertical cross members (if they are not
already in place) to provide a stable area for mounting
the gate brackets is also important.
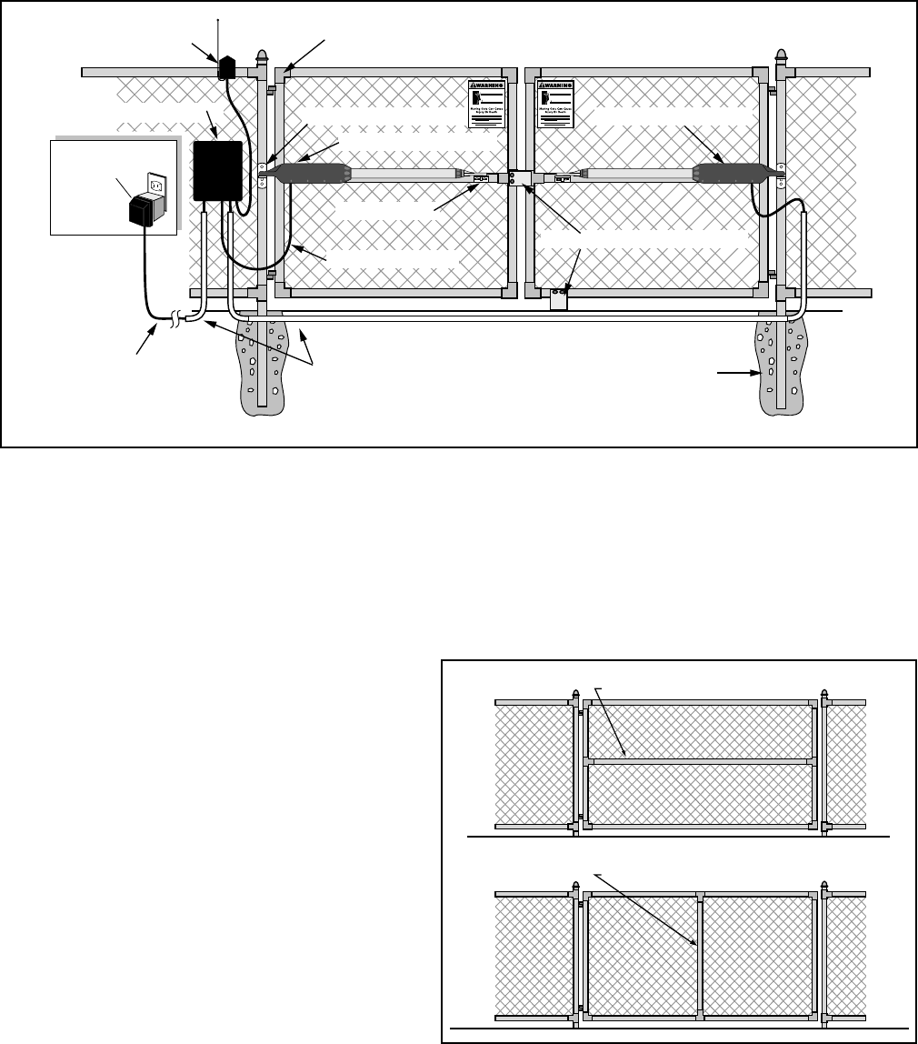
Installation Overview
Pull-to-Open Gates (Gate Opens into the Property)
The diagram shown below is an example of a pull-to-open installation on a chain link fence and dual gates. Mounting the
operators on a masonry column requires special procedures; see Column Installation Information on page 39 if you intend
to mount the operators on columns. Furthermore, if you have push-to-open gates, you will need to purchase two (2) push-
to-open brackets (see Accessory Catalog) to properly configure your system. See Push to Open Installation on page 33
before proceeding.
Horizontal Cross Member
Vertical Cross Member
Gate Swings Evenly and Freely
Hung Firmly and Plumb
Receiver
PVC conduit (not included)
to protect second opener
power cable and low voltage wire
from lawn mowers and weed eaters.
Post Bracket Assembly
Control Box with Battery
Gate Bracket
MASTER Gate Opener
Concrete Poured
Around Gate Post
Run 1000' (max.) of low
voltage wire to control
box from transformer
(wire not included).
4 1/2' Power Cable
Closed Position Positive Stop Plates
120 Volt Indoor
Transformer
(surge protector
not supplied)
SLAVE Gate Opener










