
Deutsch (DE)
25
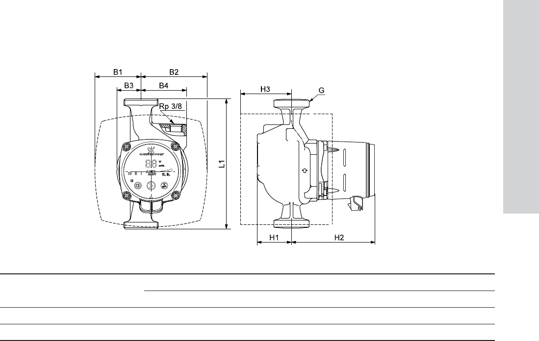
14.3 Einbaumaße der GRUNDFOS ALPHA2 25-40 A, 25-60 A
Maßskizzen und Abmessungen.
Abb. 28 ALPHA2 25-40 A, 25-60 A
TM05 2574 0212
Pumpentyp
Abmessungen
L1 B1 B2 B3 B4 H1 H2 H3 G
ALPHA2 25-40 A 180 180 63,5 98 32 63 50 124 81 1 1/2
ALPHA2 25-60 A 180 180 63,5 98 32 63 50 124 81 1 1/2