. 2. 3. 1. 2. 3mm 1. 3. 3mm 96.867.031/ÄM 225394/06.
. 1. 1. 1. 2. 3. 4. 3. 4. 2. 5. 2. 2. 6. 4. 3. 1. 5. 3. 1. 3. 4. 1. 2. 2. 4. 1. 3.
GrohFlexTM 35 026 GrohFlexTM English Français Español .....4 .....8 ...12 Design & Quality Engineering GROHE Germany 99.789.031/ÄM 219326/08.
Installation options with different types of trims Thermostat/PBV trim type #1 (single use) without bypass use with use of integrated bypass Thermostat/PBV trim type #2 (integrated two way diverter) Please pass these instructions on to the end user of the fitting! 1
Installation options with different types of trims Thermostat trim type #3 (high flow) separate volume controls required 2
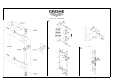
1 2 3 4 A 35 A m m 5 6 P 3
English Application Installation GrohFlexTM is a universal rough-in valve for thermostats and Pressure Balance Valves. Type of use is specified by different types of trims. To plan the piping, choose type of installation on Pages 1 and 2. Refer to the dimensional drawing on the front page. Prepare the holes for the rough-in and slots for the pipes. For different installation options, see the pre-drilled holes in Fig. [1] and [2] on Page 3 and on the front page.
Les options d'installation avec différents types du kit pour le montage final Thermostat/PBV kit pour le montage final type #1 (à usage unique) sans utilisation de déviation avec l'utilisation de circuit de dérivation intégré Thermostat/PBV kit pour le montage final type #2 (deux sens inverseur intégré) S.v.
Les options d'installation avec différents types du kit pour le montage final Thermostat kit pour le montage final type #3 (haut débit) volumen séparée contrôle est nécessaires 6
1 2 3 4 A 35 A m m 5 6 P 7
Français Application Installation • GrohFlexTM est une universel siège provisoire- pour les thermostats et les robinets de régulation. Type d'utilisation est spécifiée par les différents types du kit pour le montage final. Pour planifier la tuyauterie, choisir le type d'installation aux pages 5 et 6. Tenir compte de la cote du schéma sur la première page.
Las opcionesoptions de instalación con diferentes tipos de juego de montaje de acabado Installation Options d'installation Opciones de instalación Thermostat/PBV juego de montaje de acabado type #1 (single use) sin el uso de bypass con el uso de bypass integrao Thermostat/PBV juego de montaje de acabado type #2 (integrada doble inversión) Entregue estas instrucciones al usario final de la grifería! 9 1
Installation Las opcionesoptions de instalación Options con diferentes d'installation tipos de juego Opciones de montaje de instalación de acabado Thermostat juego de montaje de acabado type #3 (de alto flujo ) control de flujo separado requerido 2 10
1 2 3 4 A 35 A m m 5 6 P 11 1
Español Campo de aplicación Instalación GrohFlexTM es una válvula en bruto universal para termostatos y mandos de compensación de presión. El tipo de uso viene especificado por diferentes tipos de juego de montaje de acabado. Para planificar el tendido de tuberías, seleccionar el tipo de instalación en las páginas 9 y 10. Respetar el croquis de la primera página. Es posible el funcionamiento con: Hacer los agujeros para los válvula de descarga así como las rozas para las tuberías.
www.grohe.com Grohe America Inc. 241 Covington Drive Bloomingdale, IL 60108 U.S.A. Technical Services Phone: 630/582-7711 Fax: 630/582-7722 Grohe Canada Inc.
COSMOPOLITAN SQUARE DESIGN + ENGINEERING GROHE GERMANY 99.0020.031/ÄM 225682/10.12 www.grohe.com 19 926 19 927 19 928 English D .....1 .....1 NL .....6 Français .....8 S .....7 GB .....2 ...15 Español F .....3 DK .....8 E I .....4 .....5 N .....9 FIN ...10 PL .....11 .....16 BG .....21 CN .....26 UAE .....12 TR .....17 EST .....22 UA .....27 GR .....13 SK .....18 LV .....23 RUS .....28 CZ .....14 SLO .....19 LT .....24 H P .....15 HR .....20 RO .....
Type #1 19 926 Type #2 19 927 Type #3 19 928 Please pass these instructions on to the end user of the fitting! S.v.
Type #1 19 926 Type #2 19 927 Type #3 19 928 II II
Installation options with different types of trims Thermostat trim type #1 (single use) without bypass use with use of integrated bypass Thermostat trim type #2 (integrated two way diverter) Please pass these instructions on to the end user of the fitting! 1
Installation options with different types of trims Thermostat trim type #3 (high flow) separate volume controls required 2
English General Application These trims are for use with the GrohFlexTM universal rough-in valve. Planning of piping is done at the time of the rough installation. 3 different types of thermostat mixers are possible. Observe the possible combinations, see Pages 1 and 2. Specification • Integral service stops • Flow pressure: - min 1 bar or 14.5 psi - recommended 1-5 bar or 14.5 – 72.5 psi greater than 5 bar or 72.5 psi, fit pressure reducing valve • Max. operating pressure 8.5 bar or 125 psi • Max.
English Installation Type #1 and Type #2 Adjustment Attention for type #1 If both rough-in outlets are used, you have to install a spout with diverter. If only the lower rough-in outlet is used, you have to install a spout without diverter. Temperature setting, see Fig. [9]. • Before the mixer is put into service, if the mixed water temperature measured at the point of discharge varies from the specified temperature set on the thermostat handle.
English Installation Type #3 1. Install control unit and secure with screws, see Fig. [5]. 2. Open the hot and cold integrated service stops, see Fig. [6]. 3. While installation observe the right mounting position. One or more separate volume controls (D) (not supplied) are required to control the water flow, see Fig. [8]. Open volume control by turning the lever (D), see Fig. [8]. 1. Measure the temperature of the water emerging with a thermometer. 4.
English Temperature limitation Type #2, see Fig. [10b]. When in proper calibration, the temperature range is limited to 43 °C or 110 °F. There is a first safety stop at 38 °C or 100 °F. If a higher temperature is desired, one can exceed 38 °C or 100 °F by overriding the safety stop. Press the safety stop button (E). Turn lever (F) left or right: Operation Type #1, see Fig. [10a]. Turn lever (F) left or right: - Select hot or cold water flow. - Select hot or cold water flow.
English Prevention of frost damage I. Non return valves, see Figs. [11] and [12]. When the domestic water system is drained, the thermostat mixers must be drained separately, since non-return valves are installed in the hot and cold water connections. The complete thermostat assembly and non-return valves must be disassembled and removed. Install in reverse order. Maintenance Replacement parts, see page II (* = special accessories).
Options d’installation avec divers types d’organes Organe de thermostat de type #1 (usage unique) utilisation sans dérivation avec utilisation d’une dérivation intégrée Organe de thermostat de type #2 (inverseur à deux voies) S.V.P.
Options d’installation avec divers types d’organes Organe de thermostat de type #3 (débit élevé) régulateurs de volume séparés requis robinet d'arrêt 9
Français Application générale Ces organes sont conçus pour une utilisation avec la robinetterie brute universelle GrohFlexTM. La planification de la tuyauterie est réalisée au moment l’installation provisoire. 3 types de robinetteries thermostatiques sont possibles. Respecter les combinaisons possible, voir pages 1 et 2. Caractéristiques techniques • Robinet d’arrêt intégral • Pression dynamique: - min.
Français Installation type #1 et type #2 Réglage Attention pour le type #1 Si les deux sorties provisoires sont utilisées, installer un bec à inversion. Si seule la partie inférieure rugueuse en sortie est utilisé, vous devez installer un bec sans inverseur. Réglage de la température, voir fig. [9]. • Avant de mettre en service la robinetterie, si la température de l’eau mélangée mesurée au point de sortie diffère de la température spécifiée, régler sur la poignée thermostatique.
Français Installation type #3 1. Installer l‘unité de contrôle et fixer avec des vis, voir fig. [5]. 2. Ouvrir les robinets d’arrêt chaud et froid intégrés, voir fig. [6]. 3. Pendant l’installation, respecter la bonne position de montage. 4. Installation des pièces de la poignée après réglage, voir fig. [7]. Réglage Réglage de la température, voir fig. [8]. Un ou plusieurs régulateur(s) du volume (D) (non fourni) sont nécessaires pour contrôler l’écoulement d’eau, voir fig. [8].
Français Limitation de la température Si le calage est correct, la température est limitée à 43 °C ou 110 °F. Il y a une première butée de sécurité à 38 °C ou 100 °F. Si l’on souhaite une température supérieure, on peut dépasser 38 °C ou 100 °F en allant au-delà de cette butée de sécurité. Appuyer sur le bouton de sécurité de la commande (E). Fonctionnement Type #1, voir fig. [10a]. Tourner le levier (F) vers la gauche ou la droite: - Sélect l’écoulement d’eau chaude ou froide.
Français Prévention des dégâts liés au gel Fermer les robinets d’arrêt intégrés! Lors de la vidange de l’installation sanitaire, les robinetteries thermostatiques doivent être vidangées séparément, car des clapets anti-retour sont installés dans les raccordements d’eau chaude et froide. L’insert de thermostat complet et les clapets anti-retour doivent être démontés et déposés. I. Clapets anti-retour, voir fig. [11] et [12].
Opciones de instalación con distintos tipos de montajes Tipo de montaje del termostato n.º1 (uso único) sin derivación con derivación integrada Tipo de montaje del termostato n.º 2 (inversor de dos vías integrado) Proporcione estas instrucciones al usuario final del montaje.
Opciones de instalación con distintos tipos de montaje Tipo de montaje del termostato n.
Español Campo de aplicación general Estos montajes se utilizan con la válvula oculta GrohFlex universal. La planificación de las tuberías se efectúa con la instalación inicial. Se admiten 3 tipos distintos de baterías termostáticas. Observe las posibles combinaciones en la página 1 y 2. TM Especificaciones • Topes de paso integrados • Presión de trabajo: - mín.
Español Instalación tipo n.º 1 y tipo n.º 2 Ajuste Advertencia para el tipo n.º 1 Si se utilizan ambas salidas ocultas, se deberá instalar un caño de inversión. Si sólo la parte inferior rugosa en la salida se utiliza, tiene que instalar un caño sin inversor. Ajuste de la temperatura; véase la fig. [9]. • Antes de que la batería entre en funcionamiento, si la temperatura del agua mezclada en el punto de descarga difiere de la temperatura especificada ajustada en la empuñadura del termostato.
Español Instalación tipo n.º 3 1. Instale la unidad de control y fíjela con tornillos; véase la fig. [5]. 2. Abra los topes de paso integrados para agua caliente y fría; véase la fig. [6]. 3. Durante la instalación, observe la posición de montaje correcta. 4. Tras el ajuste, instale las piezas independientes de la empuñadura; véase la fig. [7]. Ajuste Ajuste de la temperatura,; véase la fig. [8].
Español Limitación de la temperatura Cuando la calibración es la adecuada, la gama de temperaturas se limita a 43 °C o 110 °F. Hay un primer bloqueo de seguridad a 38 °C o 100 °F. Si se desea una temperatura superior, es posible anular dicho bloqueo para superar los 38 °C o 100 °F. Pulse el botón de bloqueo de seguridad (E). Funcionamiento Tipo n.º 1; véase la fig. [10a]. Gire la palanca (F) a la izquierda o a la derecha: - Selecto la salida de agua fría o caliente.
Español Prevención de daños ocasionados por las heladas Cierre los topes de paso integrados. Si se drena la instalación de agua de la casa, los termostatos deben drenarse por separado, ya que las válvulas antirretorno están instaladas en las acometidas del agua fría y caliente. Se deben desmontar y extraer el montaje completo del termostato y las válvulas antirretorno. I. Válvulas antirretorno; véanse las figs. [11] y [12]. Instale en el orden inverso. Abra los topes de paso integrados.
D & +49 571 3989 333 impressum@grohe.de A & +43 1 68060 info-at@grohe.com AUS Argent Sydney & +(02) 8394 5800 Argent Melbourne & +(03) 9682 1231 B & +32 16 230660 info.be@grohe.com BG & +359 2 9719959 grohe-bulgaria@grohe.com CAU & +99 412 497 09 74 info-az@grohe.com CDN & +1 888 6447643 info@grohe.ca CH & +41 448777300 info@grohe.ch CN & +86 21 63758878 CY & +357 22 465200 EST & +372 6616354 grohe@grohe.ee F & +33 1 49972900 marketing-fr@grohe.
27 783 27 649 27 693 27 706 1. Design & Quality Engineering GROHE Germany 99.846.031/ÄM 222796/10.11 2.
27 704 27 782 27 653 27 654 27 707 27 708 2. 1. mm 24 1. mm 24 mm 24 1. 2. 2. 3.