INSTRUCTION MANUAL WIDE-BELT SANDER G0445/G0582/G9962Z/9962ZX

-46- G0445/G0582/G9962Z/9962ZX Wide Belt Sander
L1
L2
L3
T1
T2
T3
98
97
95
96
21 NC
13 NO
14 NO
22 NC
1
2
3
4
5
6
NO
NC
8
2
U
V
L1
L2
U3
1 6
1 7
1 8
1 9
1 2
1 1
6
5
3
2
1 4
1 5
14
22 A2
T1
T2
T3
2
4
6
NC
NO
2 0
2 1
97
98
95
96
NO
NC
13
21
A1
L
L2
L3
1
3
5
NO
NC
R
S
1 1
U1
V1
3
9
T1
T2
T3
2
4
6
T1
T2
T3
2
4
6
S
R
S
14
22 A2
T1
T2
T3
2
4
6
NC
NO
14
22 A2
T1
T2
T3
2
4
6
NC
NO
13
21
A1
L
L2
L3
1
3
5
NO
NC
13
21
A1
L
L2
L3
1
3
5
NO
NC
13
21
A1
L
L2
L3
1
3
5
NO
NC
14
22 A2
T1
T2
T3
2
4
6
NC
NO
3
2
2
1 9
1 1
2
1 3
2
1 0
9
8
9
1 0
R
S
R
S
R
ESR
1 2
1 3
R
U1 V1
U2 V 2 U3 1 7 1 9
1 2
1 3 1 1
9
1 0
8 6 5 5 3 3 2
1 4 1 5
2
2
GROUND
EMERGENCY
BRAKE SOLENOID
VALVE
THERMAL
OVERLOAD
AMP METER CURRENT SENSOR
FUSE
CONVEYOR
CONTACTOR
TBL UP/DOWN
FUSE
EMG BRAKE
CONTACTOR
CONTACTOR
SANDING MOTO
R
CONTACTO
R
THERMAL
OVERLOAD
U2
U2
V2
V2
U3
TBL UP/DOWN
SANDING
MOTO
R
ROTATIO
N
CONVEYOR
MOTOR
ROTATIO
N
1
2
3
1
2
3
1
4
6
2
3
5
1
4
6
2
3
5
+
-
+
-
220V
220V
220
V
220V
M
M
TABLE UP/DOWN
MOTO
R
U3U2
V2
220V
M
1
4
6
+
-
2
3
5
POWER IN POWER IN
POWER IN
POWER IN
POWER IN
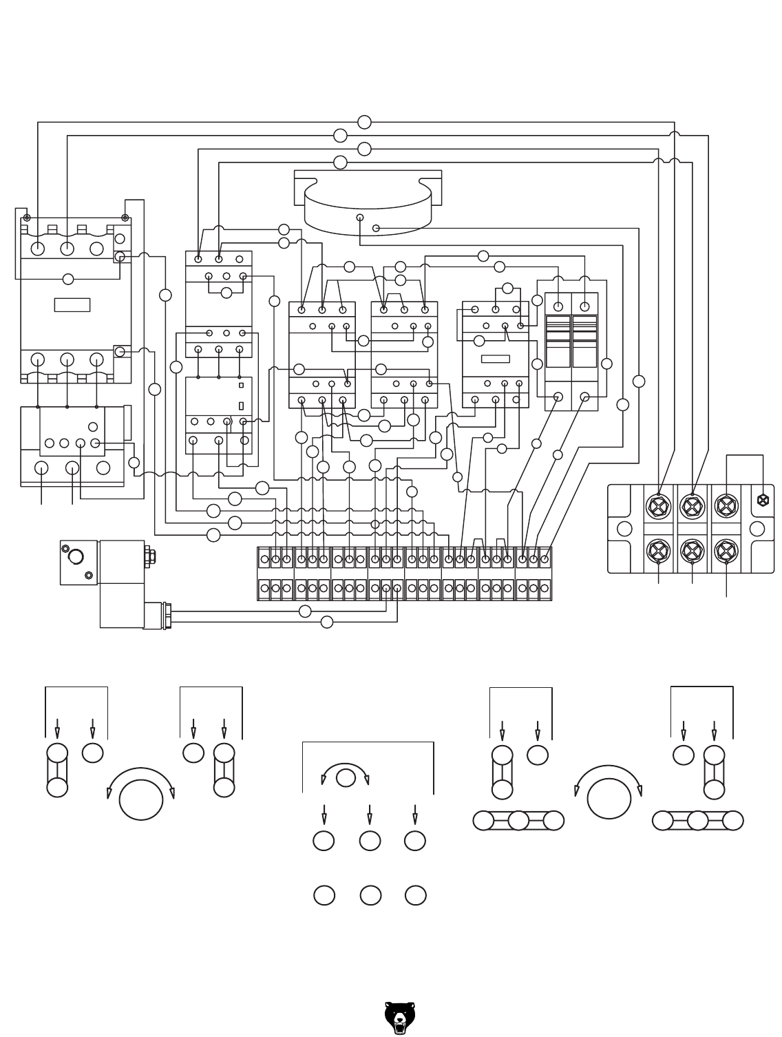
Connection Wiring Diagram (G9962Z)
220V Single-
Phase