Dust Collector User Manual

")%"
BdYZa<%))%$<%))&$<%))(B[\H^cXZ-$&%
>[ndjgbVX]^cZYdZhci]VkZVWj^ai^cYjhiedgi!
jhZFigure 47VhV\j^YZidYZiZgb^cZl]^X]h^oZ
d[Yjhiedgiid^chiVaadcndjgbVX]^cZ#
Machine Average Dust Port Size
IVWaZHVl######################################################)
B^iZg$GVY^Va"6gbHVl####################################'
?d^ciZg+VcYhbVaaZg#################################)
?d^ciZg-"&'###############################################*
I]^X`cZhhEaVcZg&(VcYhbVaaZg###############)
I]^X`cZhhEaVcZg&)"'%############################+
H]VeZg###########################################################)
GdjiZgbdjciZYidiVWaZ##############################'
7VcYhVl########################################################)
AVi]Z##############################################################)
9^hXHVcYZg&'VcYhbVaaZg#######################'
9^hXHVcYZg&("&-######################################)
7ZaiHVcYZg+VcYhbVaaZg#########################'
7ZaiHVcYZg,".########################################(
:Y\ZHVcYZg+m-%VcYhbVaaZg##############)
:Y\ZHVcYZg+m-%VcYaVg\Zg################*
9gjbHVcYZg')VcYhbVaaZg###############'m)
9gjbHVcYZg')VcYaVg\Zg#################)m)
L^YZWZaiHVcYZg&-VcYhbVaaZg################*
L^YZWZaiHVcYZg')¶(,h^c\aZ]ZVY##'m+
L^YZWZaiHVcYZg')T*&YdjWaZ]ZVY#*m)
Figure 47.Ine^XVaYjhiedgih^oZVcYfjVci^in
eZgineZd[bVX]^cZ#
Lg^iZi]ZgZfj^gZY8;B[dgZVX]bVX]^cZdcndjg
h`ZiX]!Vhh]dlc^cFigure 48#
(.*
(.*
+&)
,.%
(.*
''%
.-
Figure 48.H`ZiX]ZmVbeaZl^i]8;B
gZfj^gZbZcihaVWZaZY[dgZVX]bVX]^cZ#
Determining Main Line Duct Size
I]Z\ZcZgVagjaZd[i]jbW[dgVbV^ca^cZYjXi^h
i]Vii]Zvelocityd[i]ZV^g[adlbjhicdi[VaaWZadl
(*%%;EB#
JhZi]Z^caZih^oZd[i]ZYjhiXdaaZXidgVhVhiVgi^c\
ed^ci[dgi]ZbV^ca^cZ#CZX`i]ZbV^ca^cZYdlc
&[dgZkZgn&%d[aZc\i]#I]^hl^aajhjVaan`ZZe
i]ZV^gkZadX^inVWdkZ(*%%;EBVcY!YZeZcY^c\
dc ndjg hnhiZb! l^aa Vaadl ndj id `ZZe bjai^eaZ
WgVcX]ZhdeZcVidcZi^bZ#
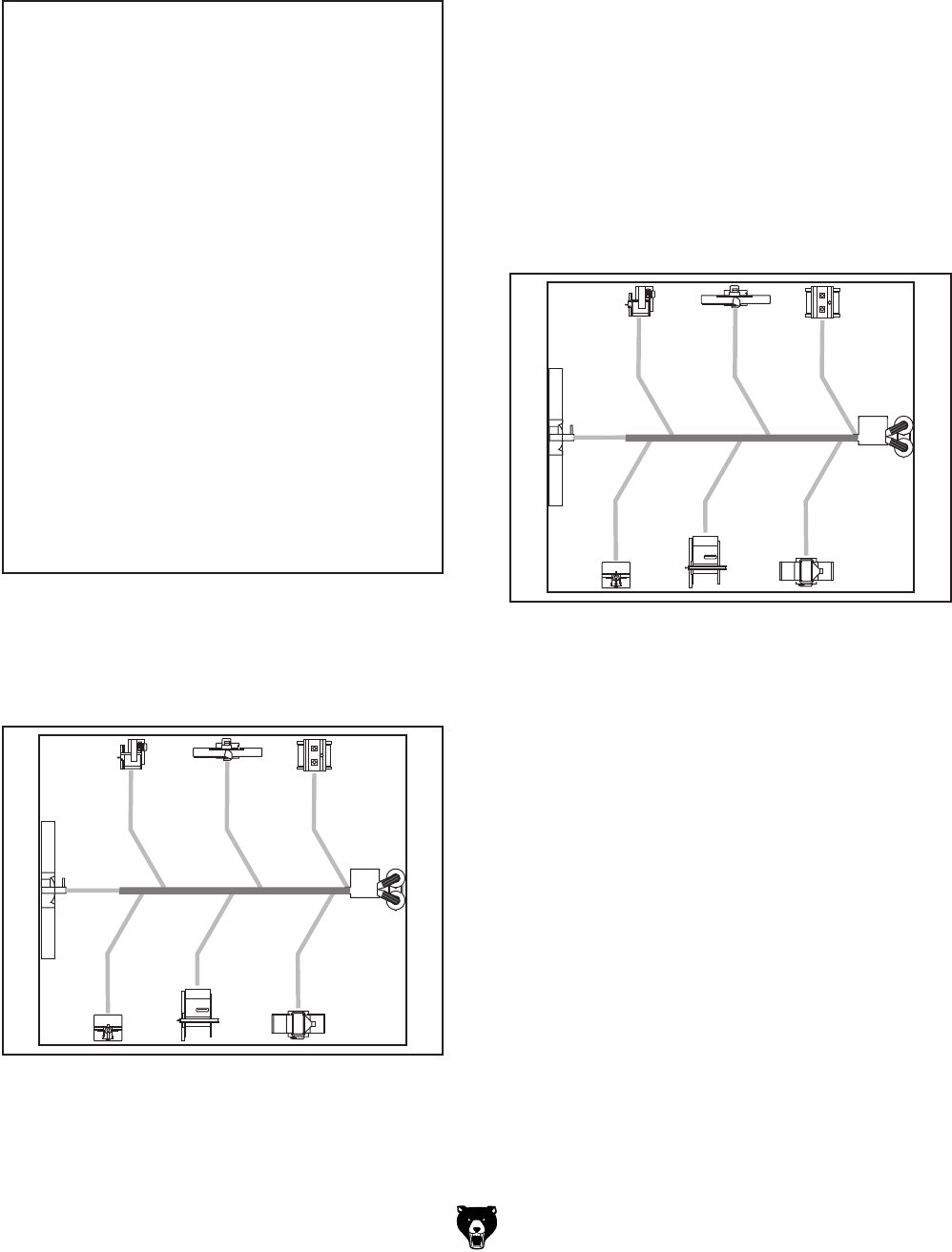
BVg`ndjgYgVl^c\Vh^cFigure 49!Wjijh^c\i]Z
^caZih^oZ[dgndjgYjhiXdaaZXidgVhi]ZbV^ca^cZ#
(.*
(.*
+&)
,.%
(.*
''%
.-
--
Figure 49.H`ZiX]ZmVbeaZl^i]bV^ca^cZYjXi
h^oZaVWZaZY#
Determining Branch Line Duct Size
I]Z\ZcZgVagjaZd[i]jbW[dgVWgVcX]a^cZYjXi^h
i]Vii]Zvelocityd[i]ZV^g[adlbjhicdi[VaaWZadl
)%%%;EB#
;dg hbVaa$bZY^jb h^oZY h]deh! jh^c\ i]Z Yjhi
edgih^oZ[gdbi]ZbVX]^cZVhi]ZWgVcX]a^cZYjXi
h^oZl^aaVX]^ZkZi]ZXdggZXikZadX^in^cbdhiVeea^"
XVi^dch#=dlZkZg!^[i]ZYjhiedgidci]ZbVX]^cZ
^h hbVaaZg i]Vc )! bV`Z i]Z WgVcX] a^cZ ) VcY
cZX`i]Za^cZYdlcg^\]iWZ[dgZi]ZYjhiedgi#
Note: Systems with powerful dust collectors work
better if multiple blast gates are left open. This
also allows you to run two machines at once.
Experiment with different combinations of blast
gates open/closed to find the best results for your
system.
Lg^iZndjgYZiZgb^cZYWgVcX]a^cZh^oZhdc ndjg
YgVl^c\!Vhh]dlc^cFigure 50#