Dust Collector User Manual

BdYZa<%))%$<%))&$<%))(B[\H^cXZ-$&%
"(."
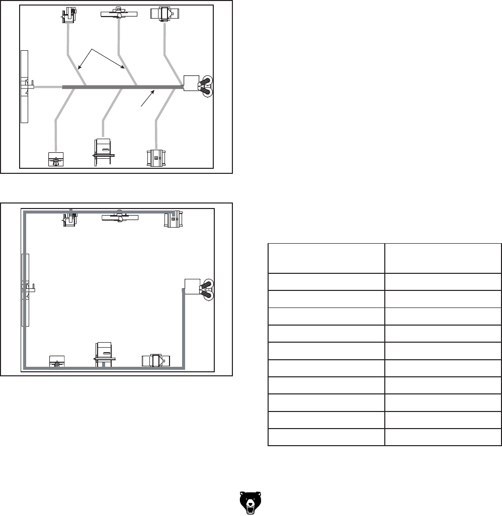
Step 3. Sketch a Basic Duct Layout
;dg i]Z cZmi hiZe! h`ZiX] ]dl ndj l^aa XdccZXi
ndjg bVX]^cZh id i]Z Yjhi XdaaZXidg# 8dch^YZg
i]ZhZ\ZcZgVa\j^YZa^cZh[dgVcZ[[^X^ZcihnhiZb/
1. BVX]^cZh i]Vi egdYjXZ i]Z bdhi hVl Yjhi
h]djaYWZeaVXZYcZVgZhiidi]ZYjhiXdaaZXidg
^#Z#eaVcZghVcYhVcYZgh#
2. >YZVaan!ndjh]djaYYZh^\ci]ZYjXihnhiZbid
]VkZi]Zh]dgiZhiedhh^WaZbV^ca^cZVcYhZX"
dcYVgnWgVcX]YjXih#HZZFigures 44–45[dg
^YZVh d[ \ddY YjXi aVndjih kZghjh WVY YjXi
aVndjih#
BV^c
A^cZ9jXi
7gVcX]
A^cZ9jXih
'//$
Figure 44.:mVbeaZd[V\ddYYjXiaVndji#
"!$
Figure 45.:mVbeaZd[V^cZ[[^X^ZciYjXiaVndji#
3. 9^gZXi^dcVaX]Vc\Zhh]djaYWZ`ZeiidVb^c^"
bjb# I]Z bdgZ Y^gZXi^dcVa X]Vc\Z [^ii^c\h
ndj jhZ Y^gZXian ^cXgZVhZh i]Z dkZgVaa gZh^h"
iVcXZidV^g[adl#
4. <gVYjVa Y^gZXi^dcVa X]Vc\Zh VgZ bdgZ Z[[^"
X^Zci i]Vc hjYYZc Y^gZXi^dcVa X]Vc\Zh ^#Z#
jhZi]Z aVg\ZhiXdgcZg gVY^jhedhh^WaZ l]Zc
X]Vc\^c\]dhZdge^eZY^gZXi^dc#
5. :VX] ^cY^k^YjVa WgVcX] a^cZ h]djaY ]VkZ V
WaVhi \ViZ ^bbZY^ViZan V[iZg i]Z WgVcX] id
XdcigdahjXi^dc[gdbdcZbVX]^cZidVcdi]Zg#
6. I]Z h^beaZg i]Z hnhiZb! i]Z bdgZ Z[[^X^Zci
VcYaZhhXdhian^il^aaWZ#
Step 4. Determine Required CFM of
Each Machine
H^cXZZVX]bVX]^cZegdYjXZhVY^[[ZgZciVbdjci
d[ hVlYjhi! i]Z gZfj^gZbZcih [dg i]Z b^c^bjb
Vbdjcid[V^g[adldg8;BXjW^X[ZZieZgb^cjiZ
idbdkZi]VihVlYjhi^hjc^fjZidi]ZbVX]^cZ[dg
ZmVbeaZ!VeaVcZgegdYjXZhbdgZhVlYjhii]VcV
iVWaZhVl#@cdl^c\i]^h gZfj^gZY8;B^h^bedg"
iVciid\Vj\^c\l]^X]h^oZd[YjXiidjhZ#
Figure 46l^aa\^kZndjVXadhZZhi^bVi^dcd[i]Z
V^g[adlndjgbVX]^cZgZfj^gZh#@ZZe^cb^cYi]Vi
bVX]^cZhi]Vi\ZcZgViZi]ZbdhihVlYjhih]djaY
WZ eaVXZY XadhZhi id i]Z Yjhi XdaaZXidg# >[ i]Z
bVX]^cZ ]Vh bjai^eaZ Yjhi edgih! i]Z idiVa 8;B
gZfj^gZY^hi]Zhjbd[Vaaedgih#
Machine
Dust Port Size
Approximate
Required CFM
' .-
'#* &*%
( ''%
) (.*
* +&)
+ --)
, &'%(
- &*,%
. &..%
&% ')*+
Figure 46.6eegdm^bViZgZfj^gZYV^g[adl8;B
WVhZYdcbVX]^cZYjhiedgih^oZ#