Dust Collector User Manual

BdYZa<%))%$<%))&$<%))(B[\H^cXZ-$&%
"."
93¼" or
109¼”
66¾" or
82½”
77¾"
26¾"
33"
24½"
19¾"
46¼"
Ø8"
33"
38½"
60¼"
Ø8"
Ø8"
33"
17¼"
10"
HeZX^ÃXVi^dch!l]^aZYZZbZYVXXjgViZ!VgZcdi\jVgVciZZY#'$'%%*#
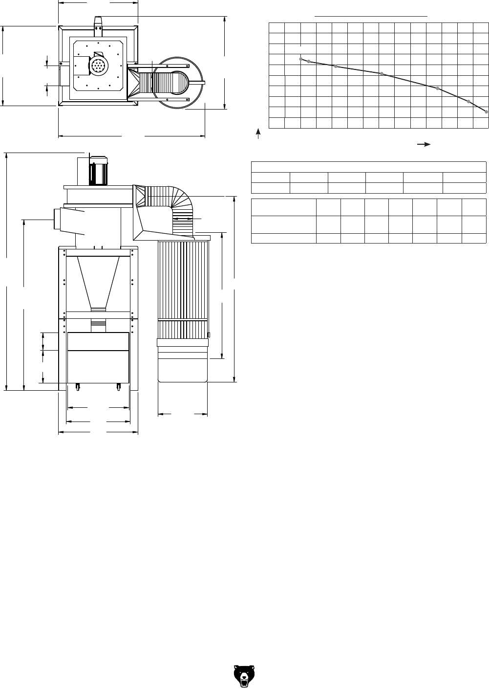
3 HP GRIZZLY DUST COLLECTOR PERFORMANCE RESULTS
Max CFM Max SP HP Volts Inlet Impeller
&+*) &)#' (=E ''%K - &*"&$'
GZhig^XidgEaViZ
^cX]
9^V#- 9^V#, 9^V#+ 9^V#* 9^V#) 9^V#( 9^V#'
HiVi^XEgZhhjgZ
>cX]$='D
'#% '#* )#' ,#' &%#- &'#, &(#-
8;B &+*) &*.) &)++ &'*% --) +'* ))'
Performance Curve
'*%%
''*%
'%%%
&,*%
&*%%
&'*%
&%%%
,*%
*%%
'*%
%
0.0 1.0 2.0 3.0 4.0 5.0 6.0 7.0 8.0 9.0 10.0 11.0 12.0 13.0 14.0
1654
CFM
STATIC PRESSURE (Inch/H2O)
I]ZV^gÄdliZhiegdWZ^hadXViZY&#*mYjXiY^VbZiZgjehigZVb[gdbi]Z
V^g^caZi#IZhie^eZaZc\i]^hVb^c^bjbd[&%mYjXiY^VbZiZg#