Spec Sheet
Manuals
Brands
Gree Manuals
Air Conditioners
Air Conditioner Cooling Area,
1
2
3
4
5
Table Of Contents
Page 1
Page 2
Page 3
Page 4
Page 5
Submittal
Data: UMAT
30HP230V1AC
30,000 BTUH C
eiling Ca
ssette
Heat Pump
Syste
m
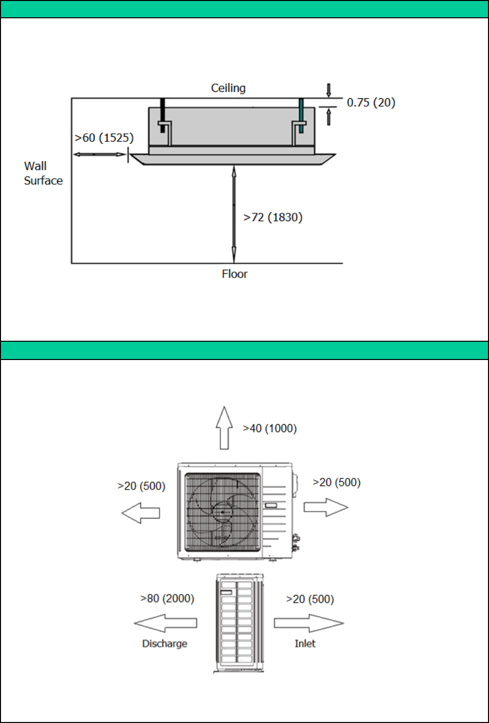
MINIMUM S
PACING
REQUIRE
MENTS
Units: inch (
mm)
INDOOR
Units: inch (
mm)
OUTDOOR
1
...
2
3
4
5